Vuokrataan toimistotilat - HELSINKI
RUOHOLAHTI, 00180 HELSINKI #10862206
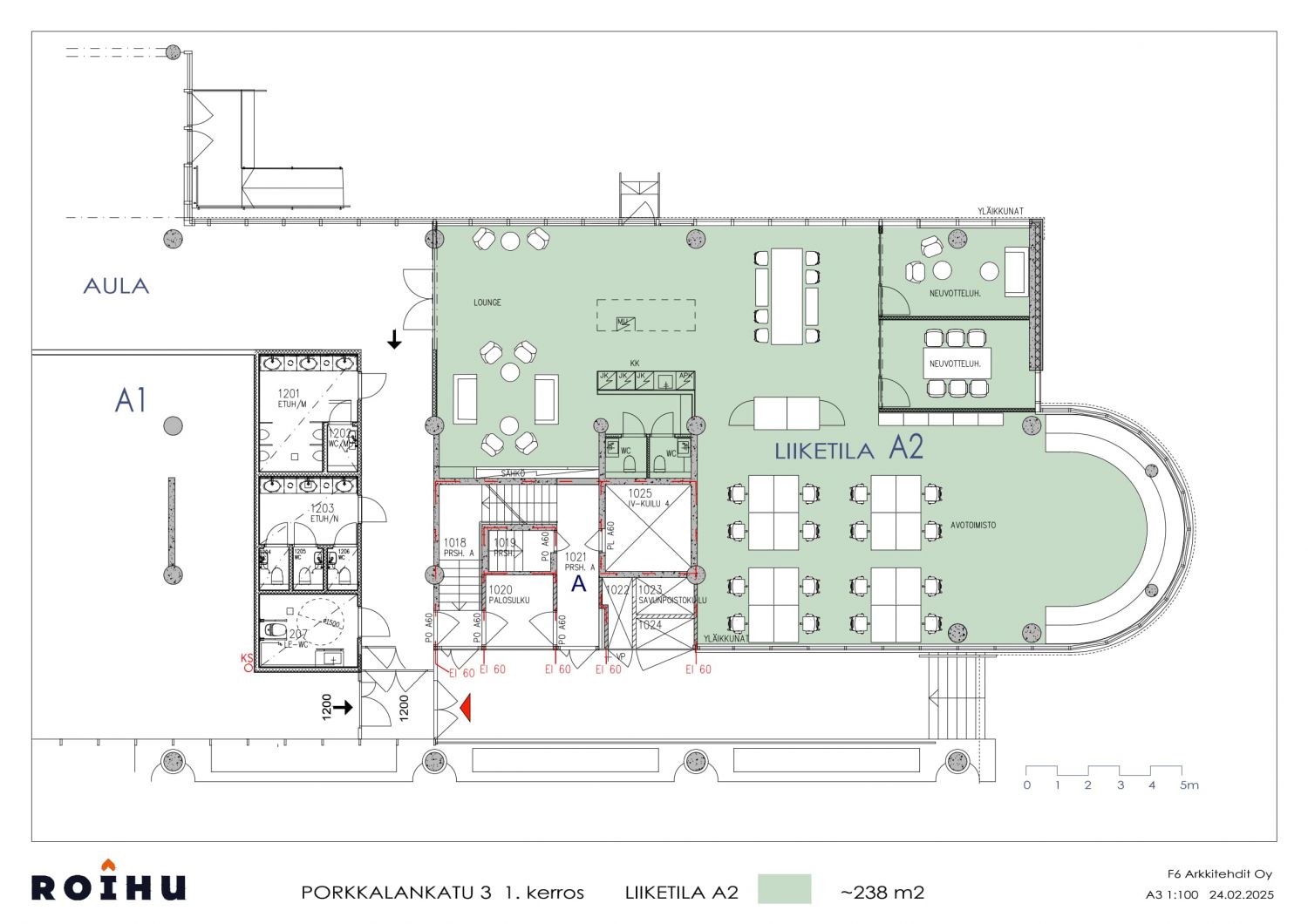
Roihu on toimistokiinteistö keskellä Ruoholahtea. Vain muutaman sadan metrin päässä metroasemalta sekä aivan Länsiväylän liittymässä. Roihu on vastikään täysin uudistettu moderniksi toimistorakennukseksi ja sen 10-kerrosta on saanut uuden ilmeen. Toimistokerrokset tarjoavat nykyaikaistettua, tyylikästä toimistotilaa. Myös talon palvelutarjonta on uudistettu ja talossa on mm. aula, kokoustilat, saunaosasto sekä isot liikuntatilat, joissa mm. uima-allas ja palloiluhalli.
Osoite
, 00180 HELSINKI
Tilatyyppi
Toimistotilaa
238 m2
Vapautuu
Heti vapaa
Ota yhteyttä
Pyydä lisätietoa
