Vuokrataan toimistotilat - Helsinki
Roihu, Porkkalankatu 3, Ruoholahti, 00180 Helsinki #10862201
Siistiä toimistotilaa urbaanissa Ruoholahdessa.
Osoite
Porkkalankatu 3, 00180 Helsinki
Tilatyyppi
Toimistotilaa
673,5 m2
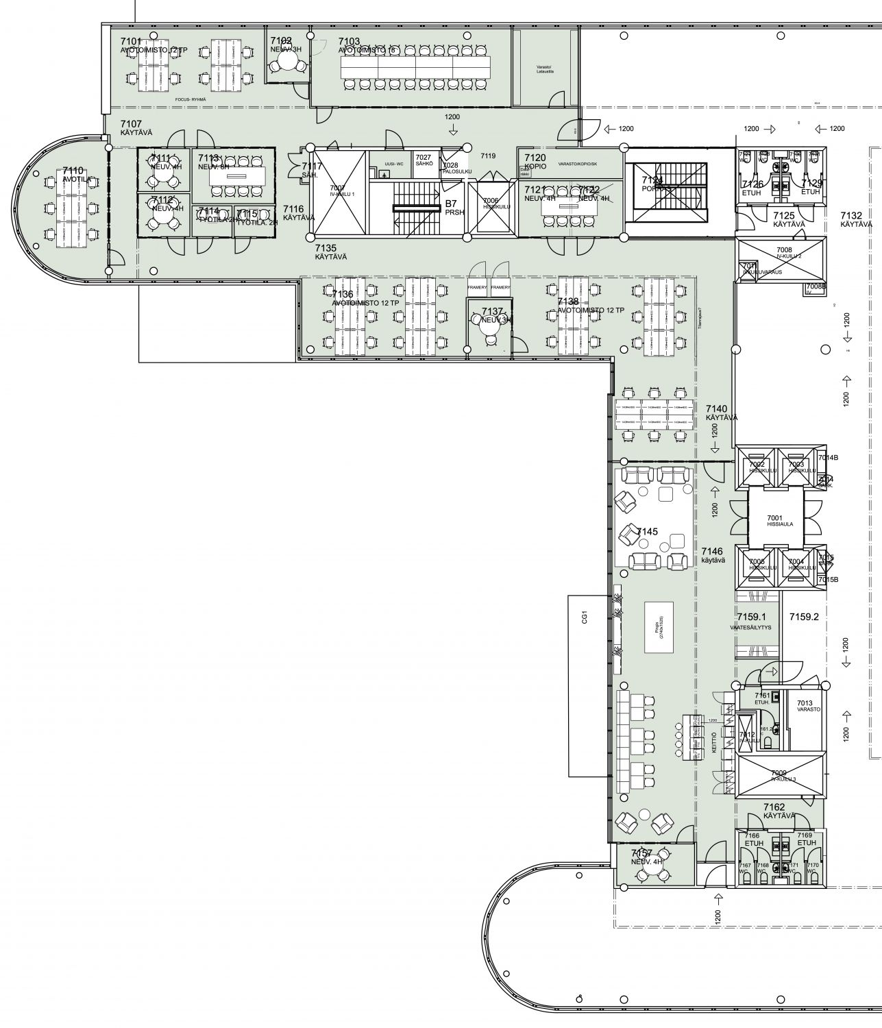
Pohjapiirros
Kiinteistö
Seitsemännen kerroksen valoisa 673,5 m² toimisto erinomaisella sijainnilla Ruoholahdessa. Tila koostuu remontoidusta avokonttorista, jota voidaan räätälöidä vastaamaan juuri teidän tarpeitanne.
Ruoholahden Roihu eli Porkkalankatu 3 on rakennettu aikoinaan Kemiran pääkonttoriksi ja se sijaitsee erinomaisella paikalla, Länsiväylän ja Porkkalankadun risteyksessä. Saavutettavuus on hyvä sekä omalla autolla että julkisella liikenteellä. Kiinteistön talotekniikka on saneerattu ja aulatilat remontoitu viihtyisiksi ja moderneiksi. Kiinteistön tilat suunnitellaan vuokralaisen tarpeiden mukaan, niin että ne tukevat yrityksen liiketoimintaa ja brändi-ilmettä. Kiinteistössä on tarjolla monipuoliset palvelut. Pohjakerroksessa on upea spa-alue uima-altaineen, täysimittainen palloiluhalli, kuntosali ja hyvin varusteltu sauna- ja edustustila. Kiinteistössä on aulapalvelu ja tasokas lounasravintola.
Ilmoituksen kuvat ovat yleiskuvia kiinteistön eri tiloista.
Ruoholahden Roihu eli Porkkalankatu 3 on rakennettu aikoinaan Kemiran pääkonttoriksi ja se sijaitsee erinomaisella paikalla, Länsiväylän ja Porkkalankadun risteyksessä. Saavutettavuus on hyvä sekä omalla autolla että julkisella liikenteellä. Kiinteistön talotekniikka on saneerattu ja aulatilat remontoitu viihtyisiksi ja moderneiksi. Kiinteistön tilat suunnitellaan vuokralaisen tarpeiden mukaan, niin että ne tukevat yrityksen liiketoimintaa ja brändi-ilmettä. Kiinteistössä on tarjolla monipuoliset palvelut. Pohjakerroksessa on upea spa-alue uima-altaineen, täysimittainen palloiluhalli, kuntosali ja hyvin varusteltu sauna- ja edustustila. Kiinteistössä on aulapalvelu ja tasokas lounasravintola.
Ilmoituksen kuvat ovat yleiskuvia kiinteistön eri tiloista.
Pysäköinti
Kohteen läheisyydessä pysäköinnissä palvelee Europarkin P-Ruoholahti, josta vuokrattavissa runsaasti autopaikkoja.
Kulkuyhteydet
Metroasema 300 m, Raitiovaunupysäkki 200 m, Bussipysäkki alle 100 m, Juna-asema 1,8 km, Lentoasema 17,2 km
Vapautuu
Heti
Kerros
7
Energiatehokkuusluokka
Ei lain edellyttämää energiatodistusta
Näkyvällä paikalla
Hissi
Ota yhteyttä
ScanReal Oy LKV
Opus Business Park
Hitsaajankatu 24
00810 Helsinki
info@scanreal.fi
Puh:
Näytä puhelinnumero
020 730 8830
Sopivat toimitilat yhdellä otolla!
Kartoitamme toimitilatarpeesi ja etsimme yrityksellesi parhaiten sopivat vapaat toimitilat. Koska vuokranantajat maksavat palvelumme, on tämä yrityksellesi veloituksetonta.
OTA YHTEYTTÄ - SOVI NÄYTTÖ!
Kaikki kohteemme eivät ole netissä, kerro tilatarpeesi niin kartoitamme vaihtoehdot.
Palvelumme on tilanhakijalle ilmainen
Pyydä lisätietoa
