Vuokrataan toimistotilat - Turku
Satamakatu 22, 20100 Turku #10862197
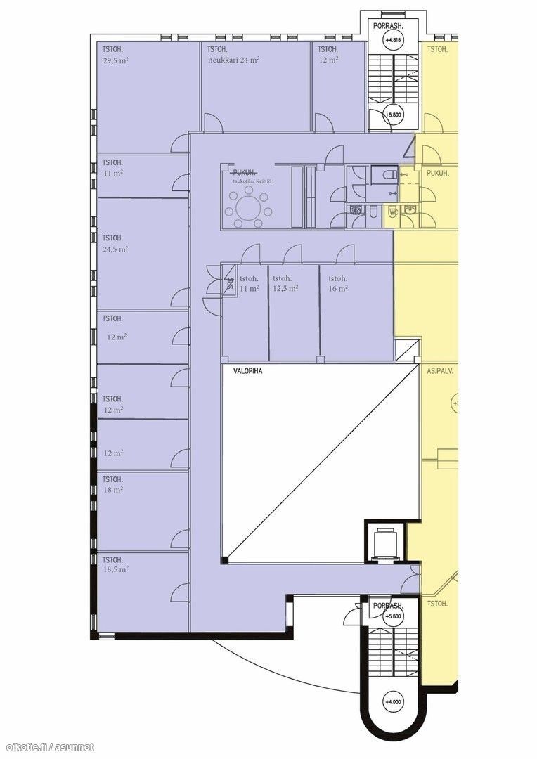
Vuokrataan 330m² toimistotilaa Turun sataman läheisyydestä hyvien kulkuyhteyksien varrelta kehittyvältä alueelta. Kokonaisuus käsittää mm. oman keittiön, suihkun sekä wc-tilan. Toisen kerroksen tilaan on sisäänkäynti rakennukseen katutasolta, josta suora hissiyhteys toimistoon. Piha-alueelta on vuokrattavissa autopaikkoja.
Vuokraan lisätään alv + kulut.
HUOM! Tilanhakijalle palvelumme on maksuton ja etsimme juuri teille sopivan tilan laajasta tilavalikoimastamme.
Ota yhteyttä ja kysy lisää!
www.blanctoimitilat.fi
Toni Niskanen
+358 44 075 8171
toni.niskanen@blanckiinteisto.com
Osoite
Satamakatu 22, 20100 Turku
Tilatyyppi
Toimistotilaa
330 m2
Vapautuu
Vapautuminen sopimuksen mukaan
Kerros
2
Ota yhteyttä
Pyydä lisätietoa
