Vuokrataan toimistotilat - ESPOO
LARS SONCKIN KAARI 12 STELLA SOLARIS, LEPPÄVAARA, 02600 ESPOO #10862163
Stella Business Park sijaitsee erinomaisella paikalla liikenteen solmukohdassa Espoon Leppävaarassa. Yrityspuistoon kuuluu neljä taloa: Luna, Terra, Solaris ja Nova. Yrityspuiston modernit toimitilat sopivat kaikenkokoisille toimijoille ja tilat ovat helposti muunneltavissa omaa toimintaa tukeviksi. Yrityspuistossa on tarjolla muun muassa aula- ja postituspalvelu, avara kuntosali, juuri valmistunut auditorio, upeat kattokerroksen saunatilat, neuvottelukeskus, autopesula sekä lounasravintola. Yrityspuistossamme on myös kaksi suurta parkkihallia, runsaasti parkkitilaa ja sähköauton latauspisteitä.
Osoite
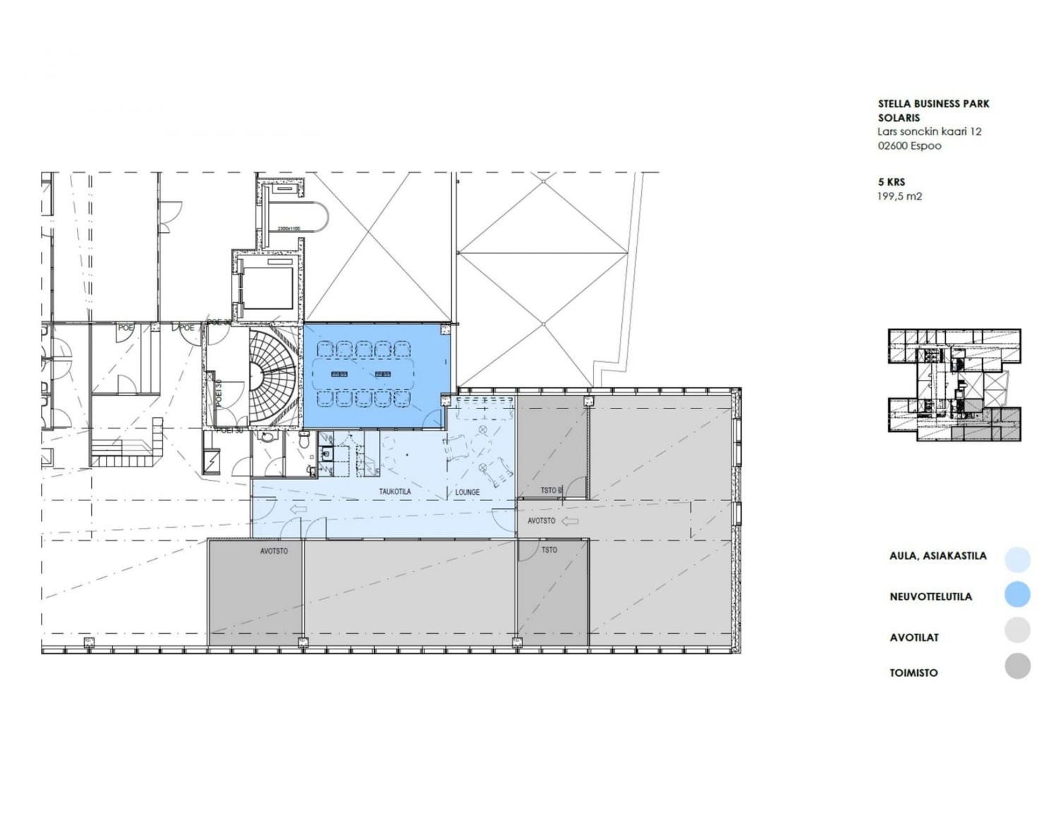
LARS SONCKIN KAARI 12 STELLA SOLARIS, 02600 ESPOO
Tilatyyppi
Toimistotilaa
199 m2
Vapautuu
Heti vapaa
Ota yhteyttä
Pyydä lisätietoa
