Vuokrataan toimistotilat - ESPOO
LEPPÄVAARA, 02600 ESPOO #10862163
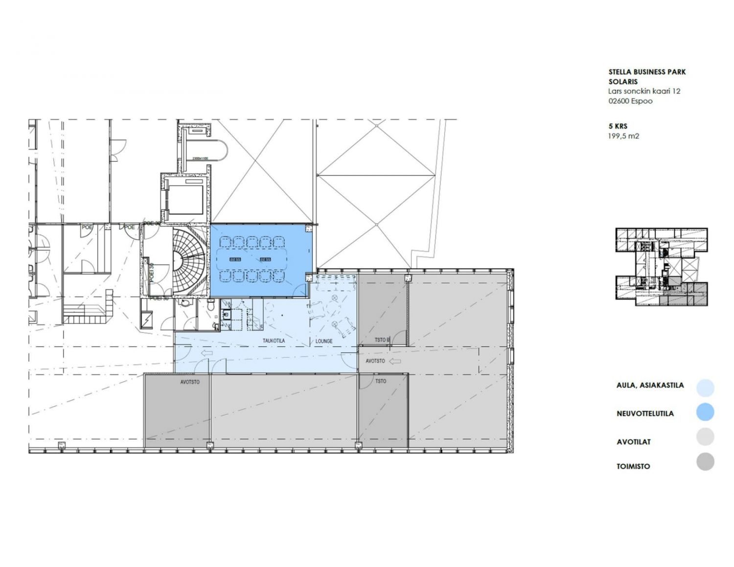
Stella Business Park sijaitsee erinomaisella paikalla liikenteen solmukohdassa Espoon Leppävaarassa. Yrityspuistoon kuuluu neljä taloa: Luna, Terra, Solaris ja Nova. Yrityspuiston modernit toimitilat sopivat kaikenkokoisille toimijoille ja tilat ovat helposti muunneltavissa omaa toimintaa tukeviksi. Yrityspuistossa on tarjolla muun muassa aula- ja postituspalvelu, avara kuntosali, juuri valmistunut auditorio, upeat kattokerroksen saunatilat, neuvottelukeskus, autopesula sekä lounasravintola. Yrityspuistossamme on myös kaksi suurta parkkihallia, runsaasti parkkitilaa ja sähköauton latauspisteitä.
Osoite
, 02600 ESPOO
Tilatyyppi
Toimistotilaa
199 m2
Vapautuu
Heti vapaa
Ota yhteyttä
Pyydä lisätietoa
