Vuokrataan toimistotilat - ESPOO
TUULIKUJA 2, TAPIOLA, 02100 ESPOO #10862135
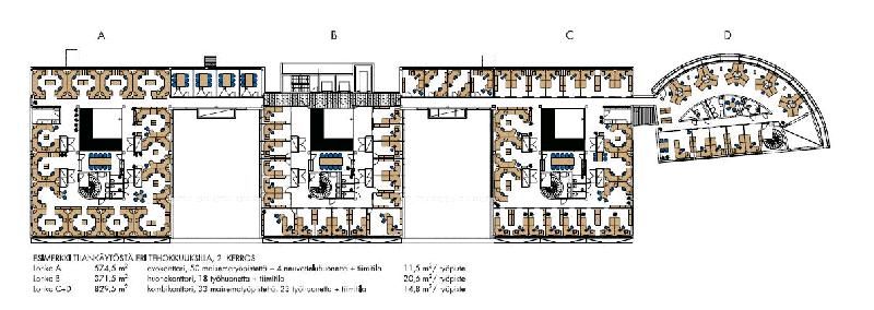
Tuulikuja 2:ssa sijaitsee pääkonttoritason kiinteistö. Uniikki pääkonttoritason talo on tunnistettava puupinnoistaan, ja puumateriaali toistuu sekä rakennuksen ulko- että sisäpuolella. Viisikerroksisessa talossa on hyvä sisäilman laatu, akustiikka ja valaistus, ja se on sertifioitu BREEAM In-Use Very Good -standardin mukaisesti. Rakennus koostuu neljästä eri toisiinsa liitetystä yksiköstä eli moduulista, jotka yhdessä mahdollistavat erityisen joustavat toimitilat käyttäjän toiminnan tarpeiden mukaan. Kiinteistössä on erittäin kattavat ja työntekijöiden hyvinvointia tukevat palvelut, kuten lounasravintola, aulapalvelu, neuvottelutiloja, auditorio, kuntosali, hotellityylinen aamiainen ja Trackman-golfsimulaattori. Piha-alueella on runsaasti parkkitilaa.
