Vuokrataan toimistotilat - HELSINKI
RUOHOLAHTI, 00180 HELSINKI #10862132
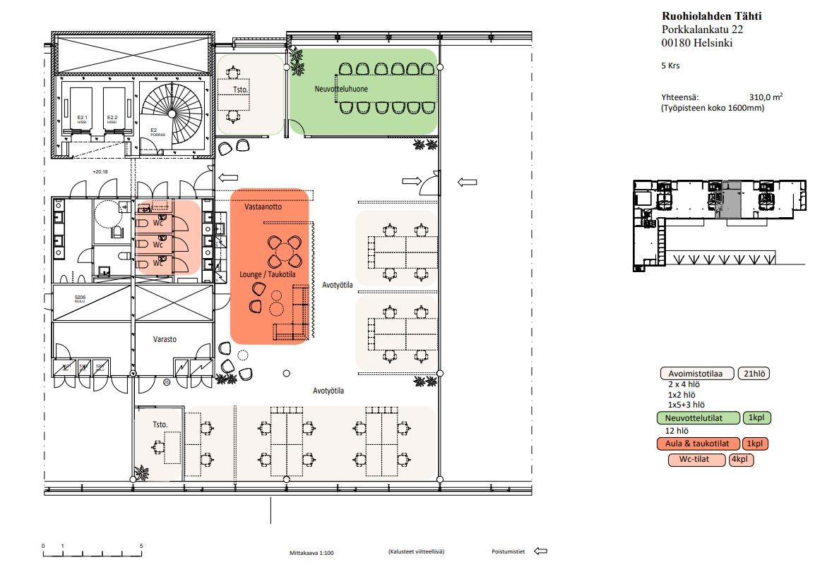
Ruoholahdessa keskeisellä paikalla sijaitseva kohde tarjoaa kaikki nykyaikaisen toimistotyön vaatimat olosuhteet. Kiinteistö on viihtyisä ja sen tilat monipuoliset, sallien erilaiset tilatoteutukset asiakkaan tarpeen mukaan. Talon isot ikkunat takaavat luonnonvalon pääsyn tiloihin. Talon palvelut ovat kattavat ja palveluvalikoimaan kuuluu mm. aulapalvelu, ravintola ja kokoustilat. Metroasema sijaitsee vastapäätä ja Ruoholahden Kauppakeskus osana kiinteistöä.
Osoite
, 00180 HELSINKI
Tilatyyppi
Toimistotilaa
324 m2
Vapautuu
Heti vapaa
Ota yhteyttä
Pyydä lisätietoa
