Vuokrataan toimistotilat - HELSINKI
ELIMÄENKATU 30, VALLILA, 00520 HELSINKI #10862120
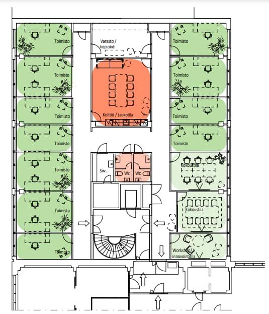
rakennus:Elimäenkatu 30 / Kumpulantie 15 -toimistotalo sijaitsee Helsingin Vallilassa. Vuonna 1942 valmistunut entinen tehdaskiinteistö on hiljaittain uudistettu ja tarjoaa moderneja toimistoja indrustriaalihengessä. Talo ulottuu Elimäenkadulta aina viereisellä Kumpulantielle asti ja sisäpihalle jää parkkitilaa. Vallilan lähialueella on runsaasti mm. ravintoloita ja muita palveja. Pasilan juna-asemalle on vain lyhyt kävelymatka. BREAAM In Use Very Good -sertifioitu.
Osoite
ELIMÄENKATU 30, 00520 HELSINKI
Tilatyyppi
Toimistotilaa
346 m2
Vapautuu
Heti vapaa
Ota yhteyttä
Pyydä lisätietoa
