Vuokrataan toimistotilat - HELSINKI
VALLILA, 00510 HELSINKI #10862117
Tyylikäs pääkonttorikiinteistö Vallilassa. Alueellaan modernilla ilmeellä erottuvan Elimäenkatu 5:n julkisivut ovat pääosin lasia. Rakennukseen tulviikin paljon luonnonvaloa ja tilat ovat miellyttävän valoisia ja viihtyisiä. Talossa on monia palveluita kuten aulapalvelu, ravintola, neuvottelukeskus ja edustussaunat. Lisäksi kohteella on POOL-konseptin joustotilapalvelu.
Osoite
, 00510 HELSINKI
Tilatyyppi
Toimistotilaa
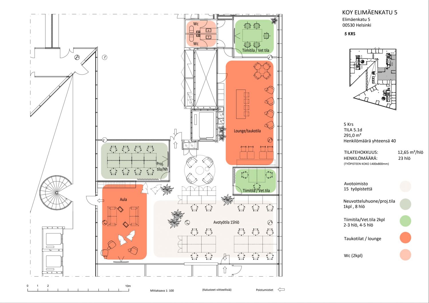
291 m2
Vapautuu
Heti vapaa
Ota yhteyttä
Pyydä lisätietoa
