Vuokrataan toimistotilat - Espoo
Linnoitustie 6, Leppävaara, 02600 Espoo #10862108
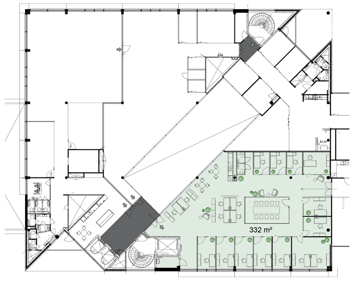
Säterinportti on tyylikäs toimistokeskus Leppävaarassa hyvien liikenneyhteyksien ja palvelujen äärellä. Vuokrattavana on modernia ja valoisaa toimistotilaa nykyaikaisessa toimintaympäristössä. Säterinportissa on käytettävissä kattavat oheispalvelut sekä runsaasti edullista pysäköintitilaa. Talossa mm. aulapalvelu, neuvottelutiloja, auditorio, lounasravintola, kuntosali, kampaamo-parturi, fillariparkki, suihkut, 1000 autopaikkaa ym.
Ota yhteyttä ja sovi esittely, vuokrauspalvelumme on tilanhakijoille maksuton.
Näkyvällä paikalla
Hissi
Senaatin Notariaatti Oy LKV
Lämmittäjänkatu 4 A
FIN-00880 Helsinki
Tel:
Näytä puhelinnumero
+358 9 7745 100
