Vuokrataan toimistotilat - HELSINKI
SÖRNÄINEN, 00500 HELSINKI #10862101
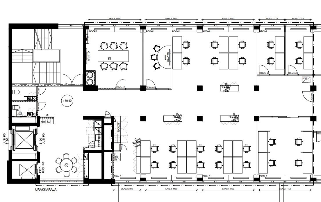
Näyttävä, vuonna 1933 valmistunut rakennus on vilkkaan Hämeentien maamerkkejä. Persoonallinen talo on saneerattu vuosina 2000 sekä 2009-2010 ja tilat ovat nykykäyttöön sopivat. Tiloissa on koneellinen ilmanvaihto, jäähdytys sekä CAT6-tason kaapelointi kuituyhteydellä. Rakennuksen tarjoamat toimistotilat voidaan toteuttaa uuden vuokralaisen toiveita vastaaviksi. Kiinteistön pääaulassa toimii aulapalvelu ja talossa on ravintola, kokoustilat, catering sekä oma autohalli. Sörnäisten metroasema sijaitsee 200m päässä.
Osoite
, 00500 HELSINKI
Tilatyyppi
Toimistotilaa
286 m2
Vapautuu
Heti vapaa
Ota yhteyttä
Pyydä lisätietoa
