Vuokrataan toimistotilat - HELSINKI
VALIMOTIE 21, PITÄJÄNMÄKI, 00380 HELSINKI #10862097
Valimo21:n tilat on tehty tehokkaaseen työntekoon. Joustavien tilojen suunnittelussa huomioidaan käyttäjäyritysten liiketoiminnan asettamat vaatimukset. Ilmastointi, akustiikka ja valaistus ovat optimaaliset. Talossa on hyvät palvelut: aula, ravintola, catering-palvelut, kokoustilat ja auditorio 150 hengelle sekä pyöräparkki ja suihkut. Kohteelta on vain 300 metriä juna-asemalle. Henkilöautoileville on iso 300 paikan halli.
Osoite
VALIMOTIE 21, 00380 HELSINKI
Tilatyyppi
Toimistotilaa
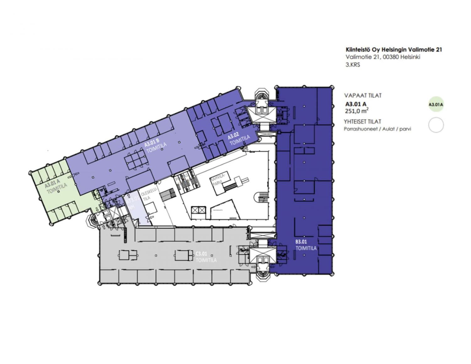
251 m2
Vapautuu
Heti vapaa
Ota yhteyttä
Pyydä lisätietoa
