Vuokrataan toimistotilat - ESPOO
LEPPÄVAARA, 02600 ESPOO #10862095
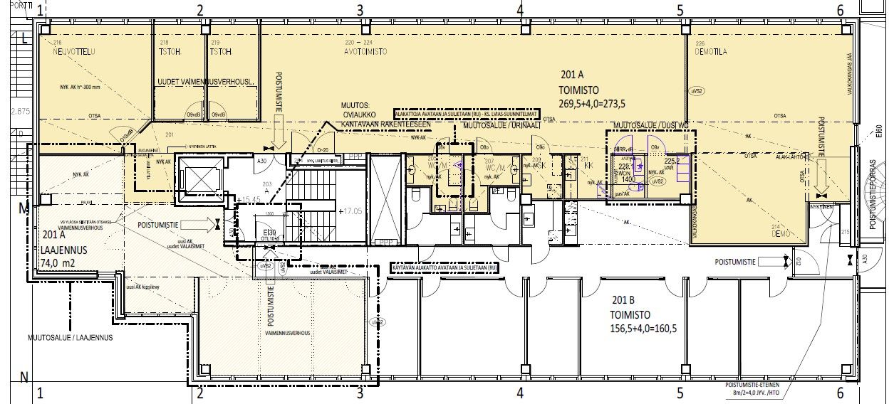
Business Center Sointu. Leppävaarassa keskeisen sijaintinsa vuoksi erinomainen pääkonttoritason kiinteistö, joka taipuu käyttäjän tarpeisiin. Runsaasti pysäköintitilaa. Sellon palvelut ja juna-asema kävelyetäisyydellä. Kiinteistössä omat edustussaunatilat, runsaasti kokous- ja koulutustilaa, oma aula sekä lounasravintola. Kellaritasossa kuntosali pukuhuoneineen sekä runsaasti arkistotilaa.
Osoite
, 02600 ESPOO
Tilatyyppi
Toimistotilaa
348 m2
Vapautuu
Heti vapaa
Ota yhteyttä
Pyydä lisätietoa
