Vuokrataan toimistotilat - HELSINKI
TALLBERGINKATU 2, RUOHOLAHTI, 00180 HELSINKI #10862083
Tallbergintalo sijaitsee Ruoholahdessa, aivan meren äärellä. Tämä rakennus tarjoaa seitsemässä kerroksessa jopa 7 000m² vuokrattavaa toimitilaa ja kerroksiin vie kaksi porraskäytävää sekä hissit. Talossa on kaukolämpö. Rakennus on yhteydessä viereiseen toimistorakennukseen, Itämerentaloon, ja rakennuksilla on yhteiset neuvottelutilat, lounasravintola ja lastauslaituri. Bussit, raitiovaunut ja metro ovat pienen kävelymatkan päässä ja talon läheisyydessä on runsaasti autopaikkoja.
Osoite
TALLBERGINKATU 2, 00180 HELSINKI
Tilatyyppi
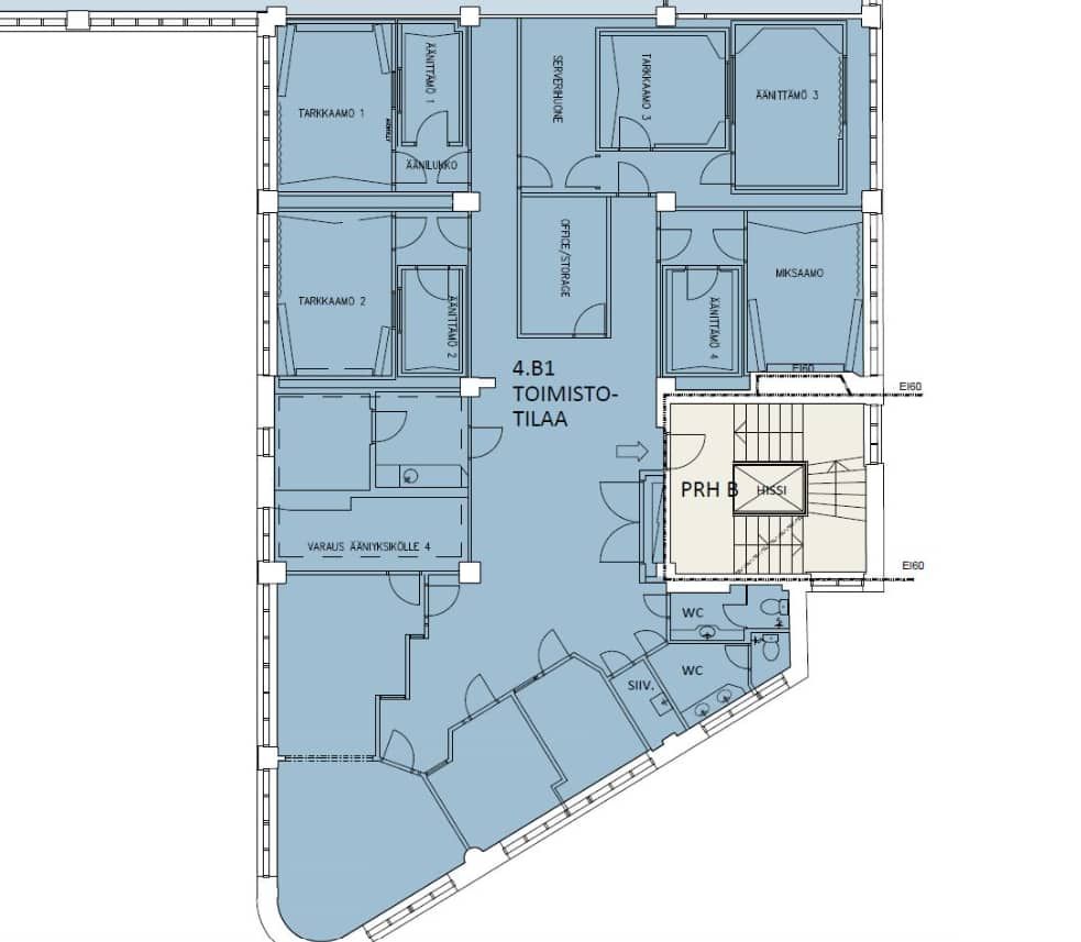
Toimistotilaa
283 m2
Vapautuu
Heti vapaa
Ota yhteyttä
Pyydä lisätietoa
