Vuokrataan toimistotilat - HELSINKI
RUOHOLAHTI, 00180 HELSINKI #10862075
Porkkalankatu 7 sijaitsee Ruoholahden keskiössä, Porkkalankadun ja Salmisaarenkadun risteyksessä. Kiinteistölle on suora yhteys Länsiväylältä ja metrolle on lyhyt kävelymatka. Kiinteistöllä on oma pysäköintilaitos. Talon vieressä sijaitsevasta Ruoholahden kauppakeskuksesta löytyvät kaikki päivittäiset palvelut.Toimitilat ovat tehokkaita ja saneerattuja vastaten nykyajan toimistotyön vaatimuksiin. Seitsenkerroksisen talon viihtyvyyttä tukevat upeat näkymät, jotka avautuvat Lauttasaaren sillan suuntaan sekä Seurasaarenselälle.
Osoite
, 00180 HELSINKI
Tilatyyppi
Toimistotilaa
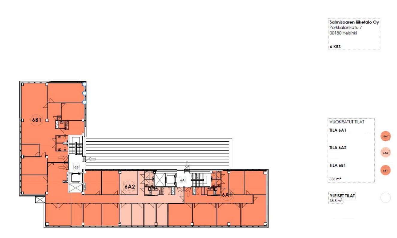
358 m2
Vapautuu
Heti vapaa
Ota yhteyttä
Pyydä lisätietoa
