Vuokrataan toimistotilat - HELSINKI
KALASATAMA, 00580 HELSINKI #10862070
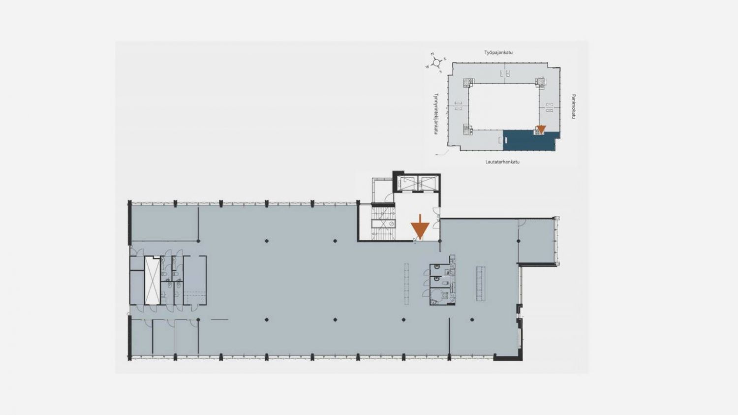
Trooli on kolmesta kiinteistöstä muodostuva moderni toimitilakortteli, joka tarjoaa asiakkailleen edustavat puitteet, nykyaikaiset ja joustavat tilat sekä hyvät tekniset valmiudet.. Kiinteistössä on aulapalvelu, vuokrattavia neuvottelutiloja, lounasravintola, pyöräparkki, autohalli, kuntosali sosiaalitiloineen. Muunneltavat tilat ja monipuoliset palvelut hyödyttävät hyvin eri toimialojen käyttäjiä. Troolin omien kattavien palveluiden lisäksi korttelin välittömässä läheisyydessä on saatavilla runsaasti lisää palveluja.
Osoite
, 00580 HELSINKI
Tilatyyppi
Toimistotilaa
786 - 1893 m2
Vapautuu
Heti vapaa
Ota yhteyttä
Pyydä lisätietoa
