Vuokrataan toimistotilat - HELSINKI
KESKUSTA, 00100 HELSINKI #10862067
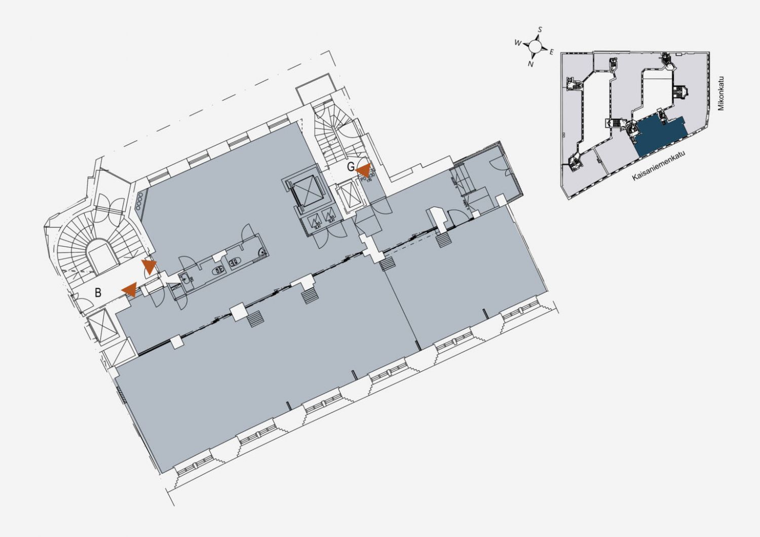
Mikonkadun ja Kaisaniemenkadun kulmassa, keskellä vilkkainta ydinkeskustaa sijaitseva kulttuurihistoriallisesti merkittävä toimistorakennus. 100-vuotias talo tarjoaa nykyisin modernisoitua, räätälöitävää toimistotilaa vuokralaisilleen. Kohteen tilat erottuvat yksityiskohdillaan ja mittavalla huonekorkeudella. Rakennukselta on lyhyt kävelymatka rautatieasemalle, Helsingin Yliopiston metroon ja alueen moniin parkkihalleihin. Ympärillä on runsaasti ravintoloita, hotelleja ja muita palveluita.
Osoite
, 00100 HELSINKI
Tilatyyppi
Toimistotilaa
281 m2
Vapautuu
09.2026
Ota yhteyttä
Pyydä lisätietoa
