Vuokrataan toimistotilat - HELSINKI
PORKKALANKATU 20, RUOHOLAHTI, 00180 HELSINKI #10862065
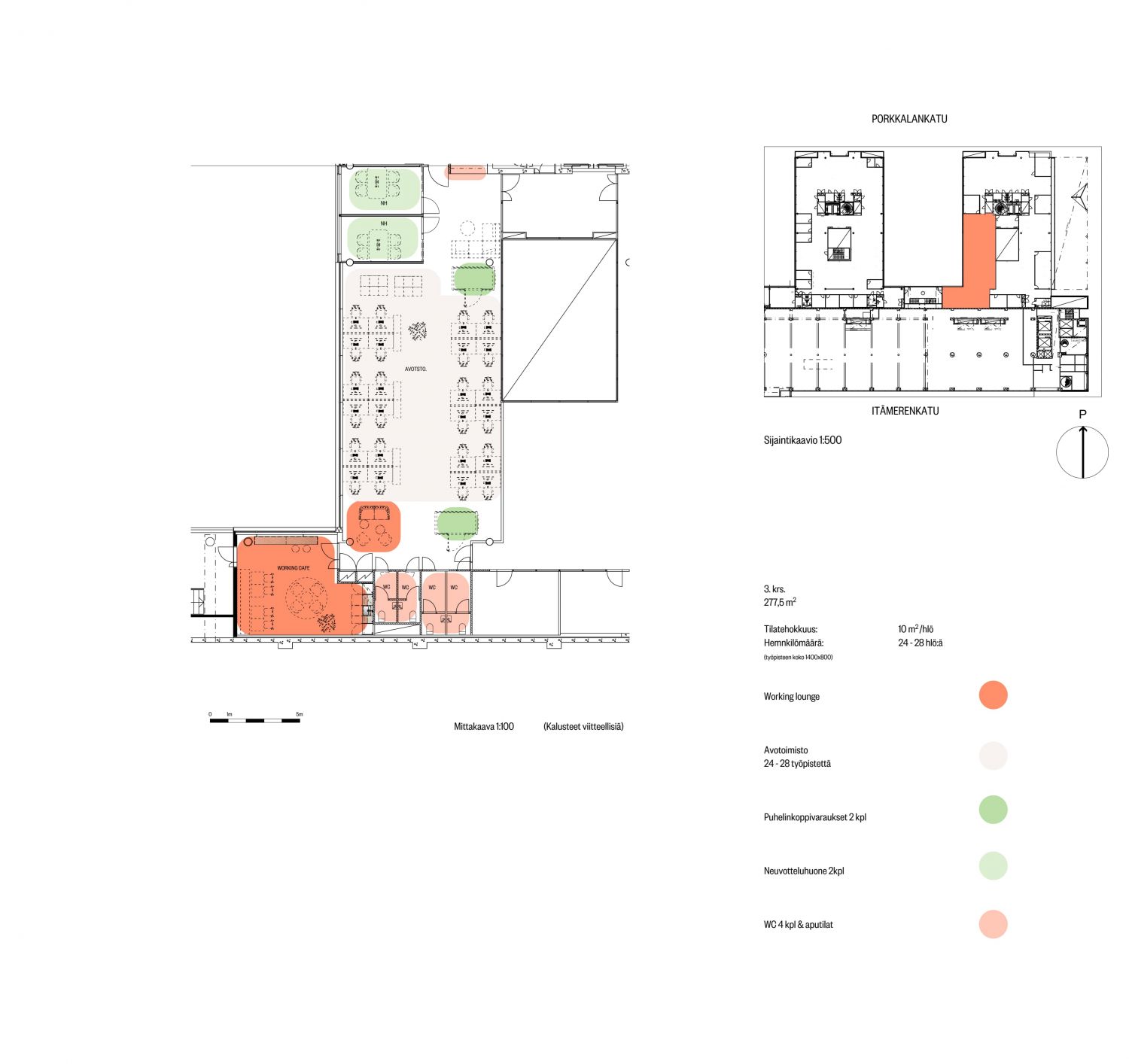
Pääkonttorikiinteistö sijaitsee vastapäätä metroasemaa ja on rakennettu vuonna 2001 eli tilat ovat muunneltavat ja tekniikaltaan modernit. Tiloissa on vähän käytäviä taaten tehokkaan tilankäytön ja optimoidut tilakustannukset. Toimistot soveltuvat erityisesti avotilaksi, mutta ne on räätälöitävissä erilaisiin käyttötarkoituksiin. Kiinteistössä on ravintola, neuvottelutiloja, vastaanotto A-sisäänkäynnin yhteydessä ja oma parkkihalli henkilökunnan ja vieraiden paikoitukseen.
Osoite
PORKKALANKATU 20, 00180 HELSINKI
Tilatyyppi
Toimistotilaa
278 m2
Vapautuu
Heti vapaa
Ota yhteyttä
Pyydä lisätietoa
