Vuokrataan toimistotilat - HELSINKI
RUOHOLAHTI, 00180 HELSINKI #10862061
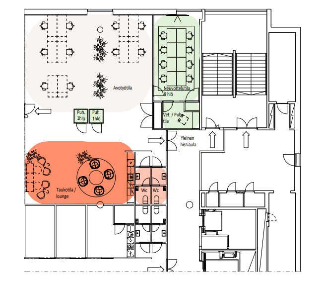
Itämerentalo sijaitsee meren rannalla Ruoholahdessa, aivan Lauttasaarensillan kupeessa. Rakennukselta avautuu kauniit merimaisemat. Itämerentalon tilat ovat trendikästä industrial-henkistä loft-tilaa betonipylväineen ja korkeine kattoineen. Rakennus on saneerattu vuonna 2002 ja sen tekniikka on nykyaikaista. Talossa vuokralaisia palvelee aulapalvelu, ravintola, neuvottelutilat sekä pienvarastot ja autohalli. Kulku talolle on helppoa julkisilla liikennevälineillä ja työmatkalaisien käytettävissä on bussit, metro ja ratikkalinjat.
Osoite
, 00180 HELSINKI
Tilatyyppi
Toimistotilaa
202 m2
Vapautuu
Heti vapaa
Ota yhteyttä
Pyydä lisätietoa
