Vuokrataan toimistotilat - Helsinki
Takomotie 1-3, Pitäjänmäki, 00380 Helsinki #10862053
Takomotie 1-3 sijaitsee aivan keskellä Pitäjänmäen dynaamista yritysaluetta. Tilassa on runsaasti ikkunoita moneen ilmansuuntaan ja monipuoliset näkymät kiinteistön ympäristöön.
Ota yhteyttä ja sovi esittely, vuokrauspalvelumme on tilanhakijoille maksuton.
Osoite
Takomotie 1-3, 00380 Helsinki
Tilatyyppi
Toimistotilaa
481 m2
Tilajako
Jaettavissa
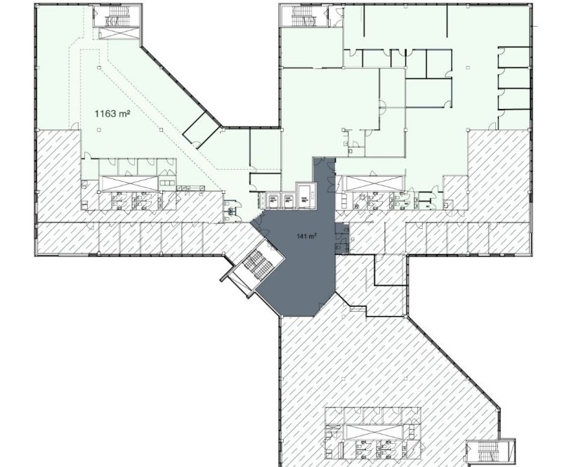
Jaettavissa 243 m2/439 m2/481 m2.
Pohjapiirros
Sijainti
Pitäjänmäki
Pysäköinti
Omassa pysäköintihallissa ja kiinteistön pihakannella.
Kulkuyhteydet
Hyvät julkiset; bussit ja juna (asemalle n. 500 m.)
Muuta
Kiinteistössä mm.kokoustilat ja auditorio.
Vapautuu
Heti
Rakennusvuosi
1998
Kerros
1 / 5
Energiatehokkuusluokka
Ei lain edellyttämää energiatodistusta
Näkyvällä paikalla
Jaettavissa
Hissi
Ota yhteyttä
Senaatin Notariaatti Oy LKV
Lämmittäjänkatu 4 A
FIN-00880 Helsinki
Tel:
Näytä puhelinnumero
+358 9 7745 100
Pyydä lisätietoa
