Vuokrataan toimistotilat - HELSINKI
FREDRIKINKATU 48, KAMPPI, 00100 HELSINKI #10862016
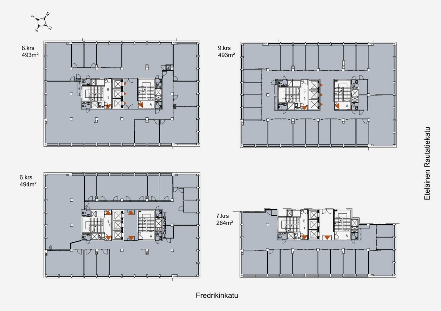
Autotalo on suosittu toimistokohde keskellä Kamppia. Autotalo koostuu neljästä tornista, joissa moderneja, viihtyisiä toimistoja kivoin näkymin. Kohde on saneerattu ja talotekniikka ja tilojen pinnat uusittiin, sisäilmaa ja energiatehokkuutta parannettiin sekä samalla uusittiin kohteen pääaula Salomonkadulla. Näyttävän aulan ohessa on useita ravintoloita.
Osoite
FREDRIKINKATU 48, 00100 HELSINKI
Tilatyyppi
Toimistotilaa
264 - 1250 m2
Vapautuu
Heti vapaa
Ota yhteyttä
Pyydä lisätietoa
