Vuokrataan toimistotilat - HELSINKI
RUOHOLAHDENKATU 8, KAMPPI, 00180 HELSINKI #10862002
Ruoholahdenkatu 8 on vuosina 1956 ja 1964 rakennettu toimistokiinteistö Kampissa, joka peruskorjattiin täydellisesti vuonna 2005. Talo tarjoaa tehokkaat ja muokattavat toimistotilat, jotka muuntautuvat niin avokonttoriksi kuin huonetoimistoksikin. Rakennuksessa on koneellinen ilmanvaihto ja jäähdytys. Lisäksi kiinteistössä on ravintola, kuntosali ja varastotilaa. Kampin keskus ja metro on kivenheiton päässä. Rakennuksen sisäpihalla ja kellarissa on yhteensä noin 50 pysäköintipaikkaa.
Osoite
RUOHOLAHDENKATU 8, 00180 HELSINKI
Tilatyyppi
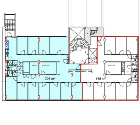
Toimistotilaa
148 m2
Vapautuu
Heti vapaa
Ota yhteyttä
Pyydä lisätietoa
