Vuokrataan toimistotilat - HELSINKI
KESKUSTA, 00100 HELSINKI #10861994
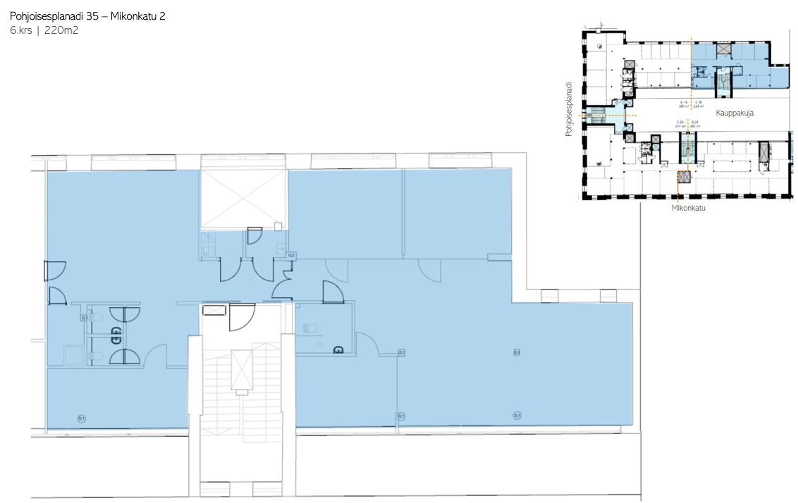
Pohjoisesplanadi 35ssa oleva kiinteistö on loistavalla paikalla Helsingin ydinkeskustassa viihtyisän Esplanadin puistokadun varrella. Kiinteistössä on laadukkaita toimistotiloja monen kokoisille yrityksille. Kohteessa on tehokkaat tilaratkaisut, jotka voi joustavasti hyödyntää monitilaympäristönä. Tiloissa on koneellinen ilmanvaihto ja jäähdytys.
Osoite
, 00100 HELSINKI
Tilatyyppi
Toimistotilaa
224 m2
Vapautuu
Heti vapaa
Ota yhteyttä
Pyydä lisätietoa
