Vuokrataan toimistotilat - HELSINKI
Pursimiehenkatu 29-31, PUNAVUORI, 00150 HELSINKI #10861986
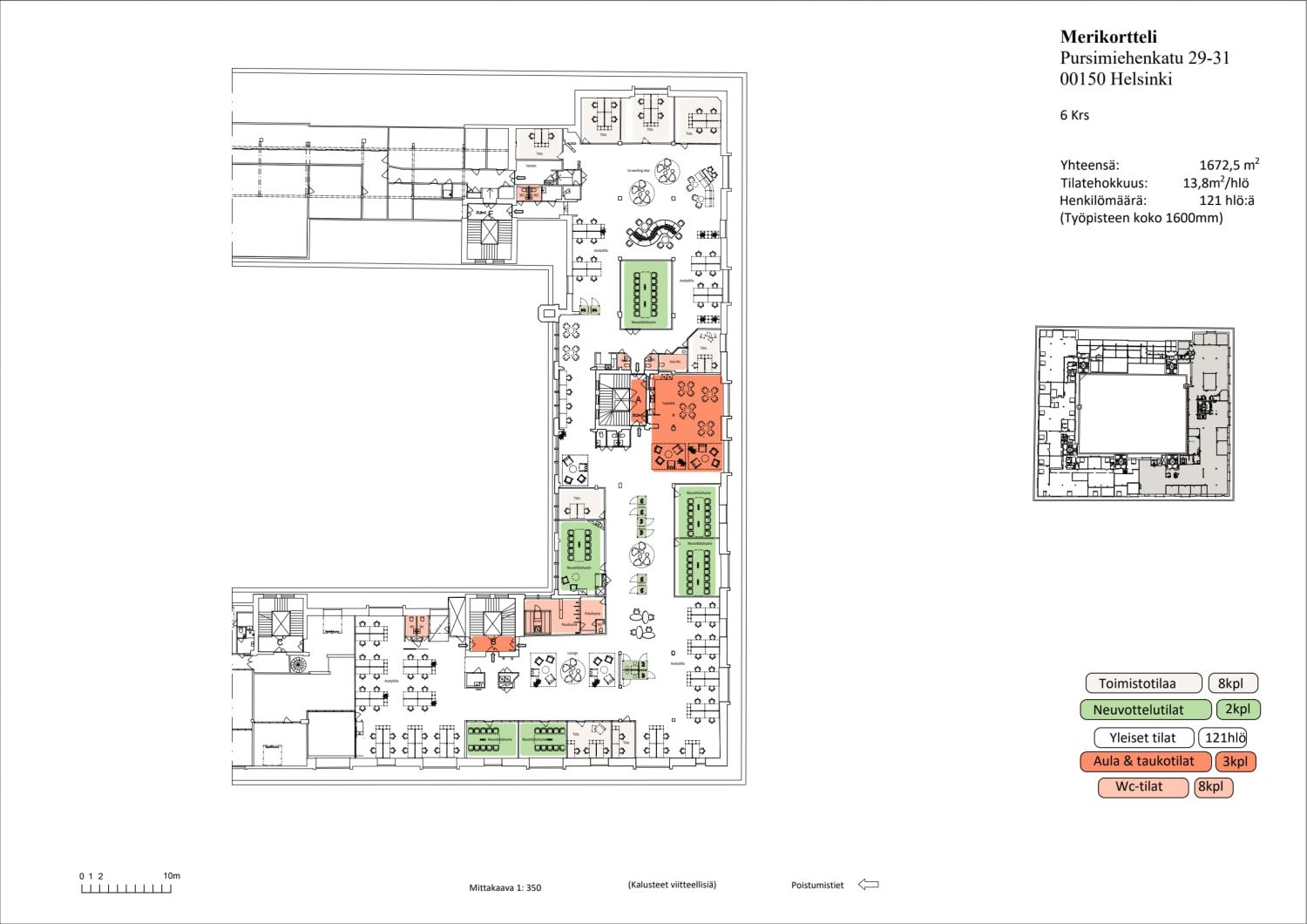
Kokonaisen kaupunkikorttelin laajuinen maamerkki, Merikortteli, valmistui 1920-luvulla puhelinkaapelitehtaaksi. Nykyisin kulttuurihistoriallisesti arvokas talo tarjoaa industrial-henkistä toimistotilaa upeine korkeine huoneineen ja isoine tehdasikkunoineen. Tehdashistoriasta muistuttaa useampi tavarahissi. Toimitilojen lisäksi kiinteistössä on jonkin verran liike- sekä varastotilaa sekä laaja sisäpiha ja pysäköintihalli. Talo sijaitsee lähellä merta Punavuoren sydämessä, ratikkalinjan varrella.
Osoite
Pursimiehenkatu 29-31, 00150 HELSINKI
Tilatyyppi
Toimistotilaa
586 - 1480 m2
Vapautuu
Heti vapaa
Ota yhteyttä
Pyydä lisätietoa
