Vuokrataan toimistotilat - HELSINKI
KALASATAMA, 00580 HELSINKI #10861982
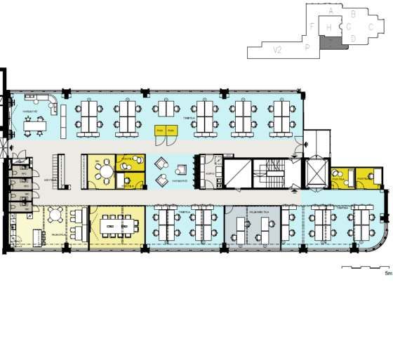
Toimistotalo Työpaja on valmistunut vuonna 1989 ja peruskorjattu 2017. Kymmenkerroksinen rakennus on uudistettu moderniksi ja nykyaikaiseksi monikäyttäjätaloksi joka on muunneltava. Vuokralaisten käytössä on aulapalvelu, auditorio, neuvottelutiloja, lounasravintola, kuntosali ja sosiaalitilat sekä autohalli. Kohde sijaitsee aivan metroaseman sekä Redin vieressä. LEED Gold -sertifioitu.
Osoite
, 00580 HELSINKI
Tilatyyppi
Toimistotilaa
469 m2
Vapautuu
Heti vapaa
Ota yhteyttä
Pyydä lisätietoa
