Vuokrataan toimistotilat - HELSINKI
TYÖPAJANKATU 13, KALASATAMA, 00580 HELSINKI #10861980
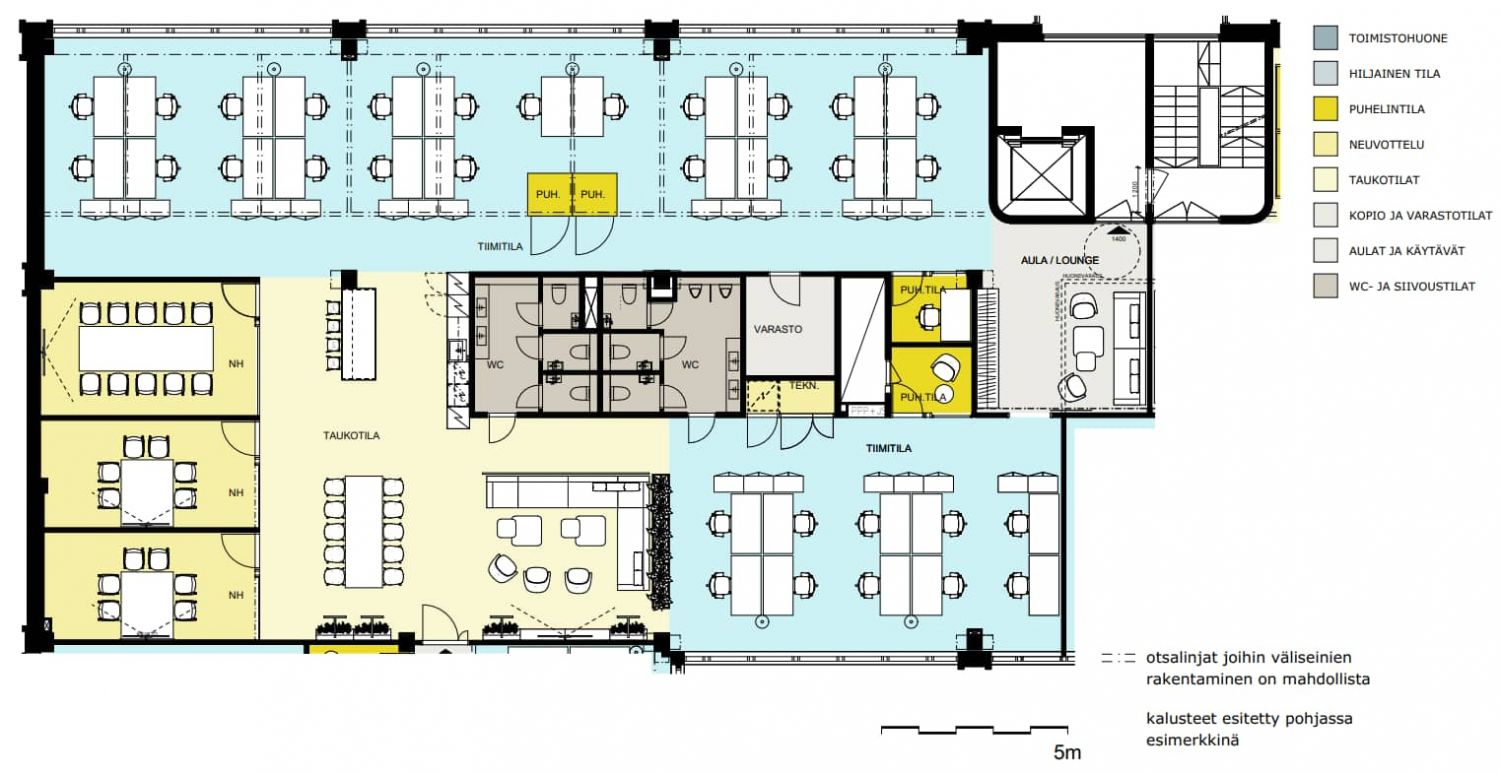
Toimistotalo Työpaja on valmistunut vuonna 1989 ja peruskorjattu 2017. Kymmenkerroksinen rakennus on uudistettu moderniksi ja nykyaikaiseksi monikäyttäjätaloksi joka on muunneltava. Vuokralaisten käytössä on aulapalvelu, auditorio, neuvottelutiloja, lounasravintola, kuntosali ja sosiaalitilat sekä autohalli. Kohde sijaitsee aivan metroaseman sekä Redin vieressä. LEED Gold -sertifioitu.
Osoite
TYÖPAJANKATU 13, 00580 HELSINKI
Tilatyyppi
Toimistotilaa
442 m2
Vapautuu
Heti vapaa
Ota yhteyttä
Pyydä lisätietoa
