Vuokrataan toimistotilat - HELSINKI
TÖÖLÖNKATU 4, ETU-TÖÖLÖ, 00100 HELSINKI #10861970
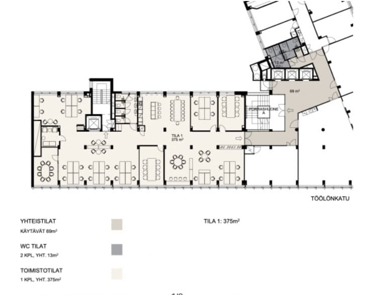
Etu-Töölössä aivan Eduskuntatalon vieressä sijaitseva Kuparitalo on toimistokiinteistö hyvien kulkuyhteyksien varrella. Kohteessa on vastaanotto, neuvottelukeskus, edustussauna ja pieni pysäköintihalli. Kauppakeskus Kamppi metroineen sijaitsee aivan kävelyetäisyyden päässä. Kohteen kuntosalin käyttö sisältyy vuokraan. Kuparitalon tilat ovat muunneltavissa ja skaalautuvia, ja ne soveltuvat erinomaisesti niin pienille tiimeille kuin suuremmille organisaatioille. Vuokralaiset voivat valita toimistonsa sisustuksen kolmesta huolella suunnitellusta teemasta.
Osoite
TÖÖLÖNKATU 4, 00100 HELSINKI
Tilatyyppi
Toimistotilaa
224 m2
Vapautuu
Heti vapaa
Ota yhteyttä
Pyydä lisätietoa
