Vuokrataan toimistotilat - HELSINKI
TELEVISIOKATU 2 PASILAN LINKKI, LÄNSI-PASILA, 00240 HELSINKI #10861951
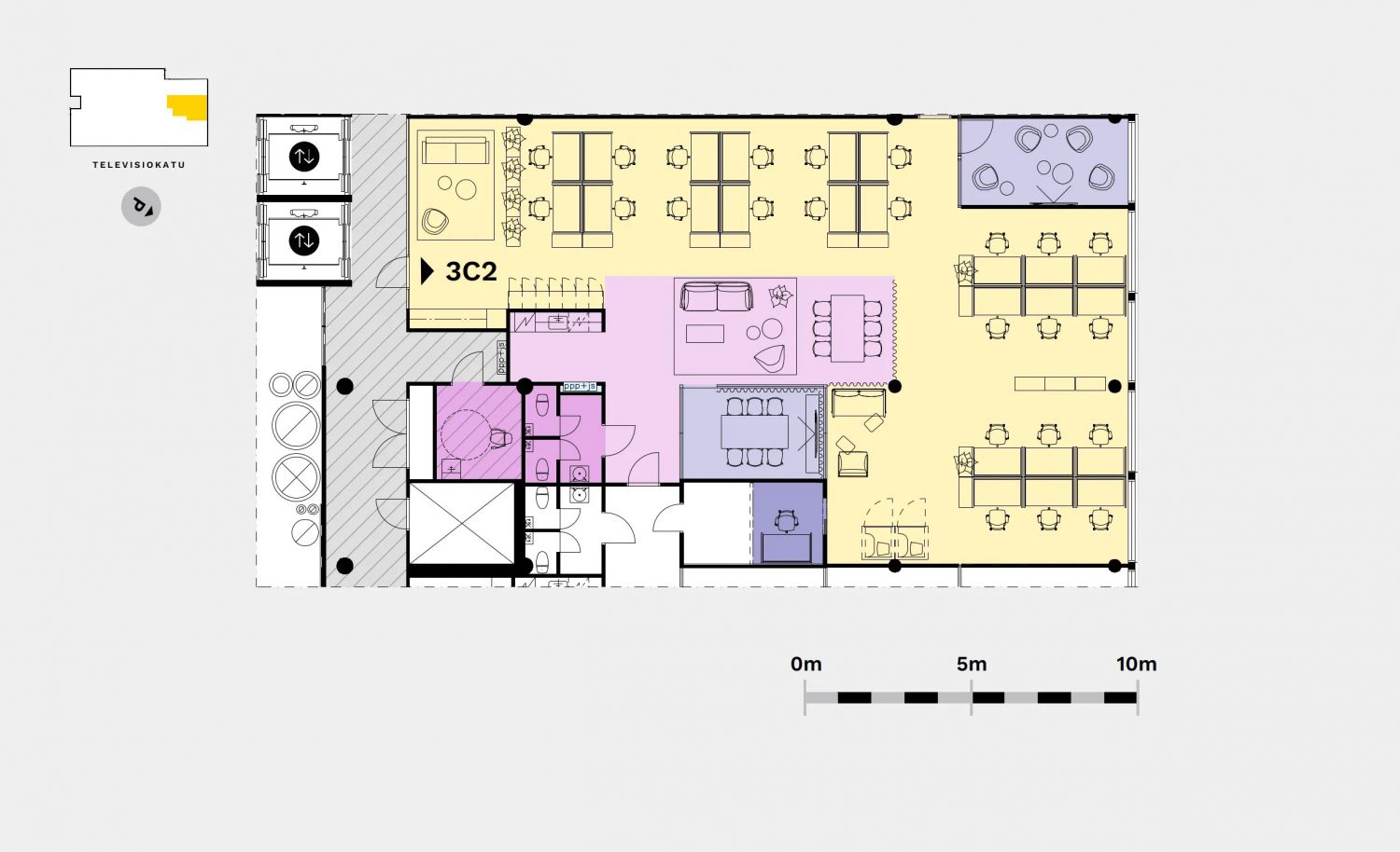
Edustavia ja ilmavia toimitiloja Pasilan Linkistä erinomaisten kulkuyhteyksien keskipisteestä. Modernit toimitilat Pasilan Linkissä ovat täydellinen ratkaisu, kun haluat keskittyä olennaiseen ja vaadit toimitiloilta edustavuutta. Pasilan Linkki kattaa sisällään laajan palveluvalikoiman ja sen joustavat toimitilat muovautuvat organisaatiosi tarpeisiin. Palvelukokonaisuus pitää sisällään aulapalvelun, kahvilan ja ravintolan, kokouspalvelut sekä kuntosalin. Muuntojoustavien tilojen tarkkaan harkitut yksityiskohdat ja huipputeknologia takaavat optimaaliset työolosuhteet sekä yksilö- että tiimityöskentelyyn ja kokouksiin.
Osoite
TELEVISIOKATU 2 PASILAN LINKKI, 00240 HELSINKI
Tilatyyppi
Toimistotilaa
266 m2
Vapautuu
Heti vapaa
Ota yhteyttä
Pyydä lisätietoa
