Vuokrataan toimistotilat - HELSINKI
VÄÄKSYNTIE 2, VALLILA, 00150 HELSINKI #10861924
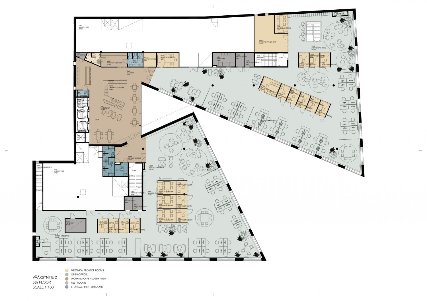
OP:n pääkonttori valmistui 2017 Teollisuuskadun varrelle, näkyvälle paikalle. Korkealaatuiset tilat on suunniteltu sisäilman, valaistuksen sekä akustiikan osalta täyttämään tarkat vaatimukset. Talon 1. kerroksessa on liiketiloja, 2.-7. kerroksessa joustavasti muuntautuvaa toimistotilaa. Isossa korttelissa on runsaasti palveluja, kuten ravintoloita, kokoustilat, sauna ja edustustilat sekä hyvinvointikeskus, jossa kuntosali, hieronta sekä ryhmäliikuntatila. Talon kellarissa on iso autohalli. Rakennuksella on LEED Gold -ympäristösertifikaatti.
Osoite
VÄÄKSYNTIE 2, 00150 HELSINKI
Tilatyyppi
Toimistotilaa
800 - 1678 m2
Vapautuu
Heti vapaa
Ota yhteyttä
Pyydä lisätietoa
