Vuokrataan toimistotilat - HELSINKI
ALEKSANTERINKATU 19, KESKUSTA, 00100 HELSINKI #10861920
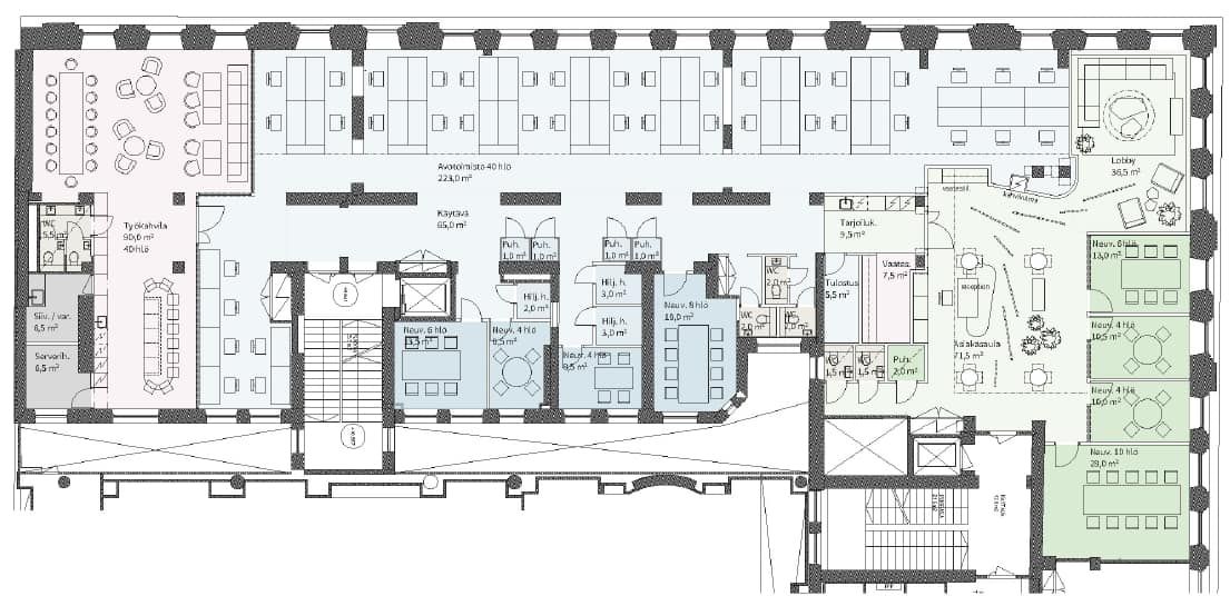
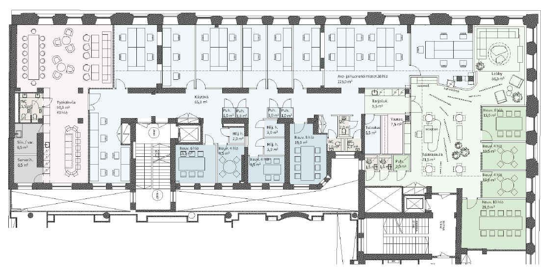
Aleksi-Hermeksen kaunis arvokiinteistö sijaitsee kaupungin parhaalla paikalla Aleksanterinkadun ja Keskuskadun kulmassa, Stockmannia vastapäätä aivan Helsingin ytimessä. Uniikin talon toimistot ovat viihtyisät ja omaleimaisen niistä tekee erityisesti korkea huonekorkeus.
Osoite
ALEKSANTERINKATU 19, 00100 HELSINKI
Tilatyyppi
Toimistotilaa
678 m2
Vapautuu
Heti vapaa
Ota yhteyttä
Pyydä lisätietoa
