Vuokrataan toimistotilat - HELSINKI
KESKUSTA, 00100 HELSINKI #10861919
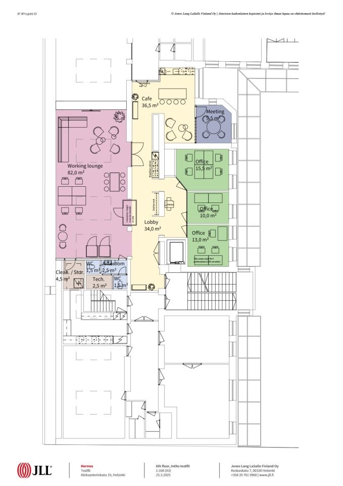
Aleksi-Hermeksen kaunis arvokiinteistö sijaitsee kaupungin parhaalla paikalla Aleksanterinkadun ja Keskuskadun kulmassa, Stockmannia vastapäätä aivan Helsingin ytimessä. Uniikin talon toimistot ovat viihtyisät ja omaleimaisen niistä tekee erityisesti korkea huonekorkeus.
Osoite
, 00100 HELSINKI
Tilatyyppi
Toimistotilaa
211 m2
Vapautuu
Heti vapaa
Ota yhteyttä
Pyydä lisätietoa
