Vuokrataan liiketilat - Helsinki
Tietokuja 2, Munkkiniemi, 00330 Helsinki #10861917
Yrityskampus Bloomsvillessä nyt vapaana 1. kerroksen, aiemmin pankkikonttorina toiminut tila lähes 4 metrin huonekorkeudella. Kiinteistö on perussaneerattu v. 2023 ja siinä on kaikin puolin viimeisen päälle oleva moderni talotekniikka miellyttävällä sisäilmastolla ja akustiikalla. Ota yhteyttä ja sovi esittely, vuokrauspalvelumme on tilanhakijoille maksuton.
Osoite
Tietokuja 2, 00330 Helsinki
Tilatyyppi
Liiketilaa
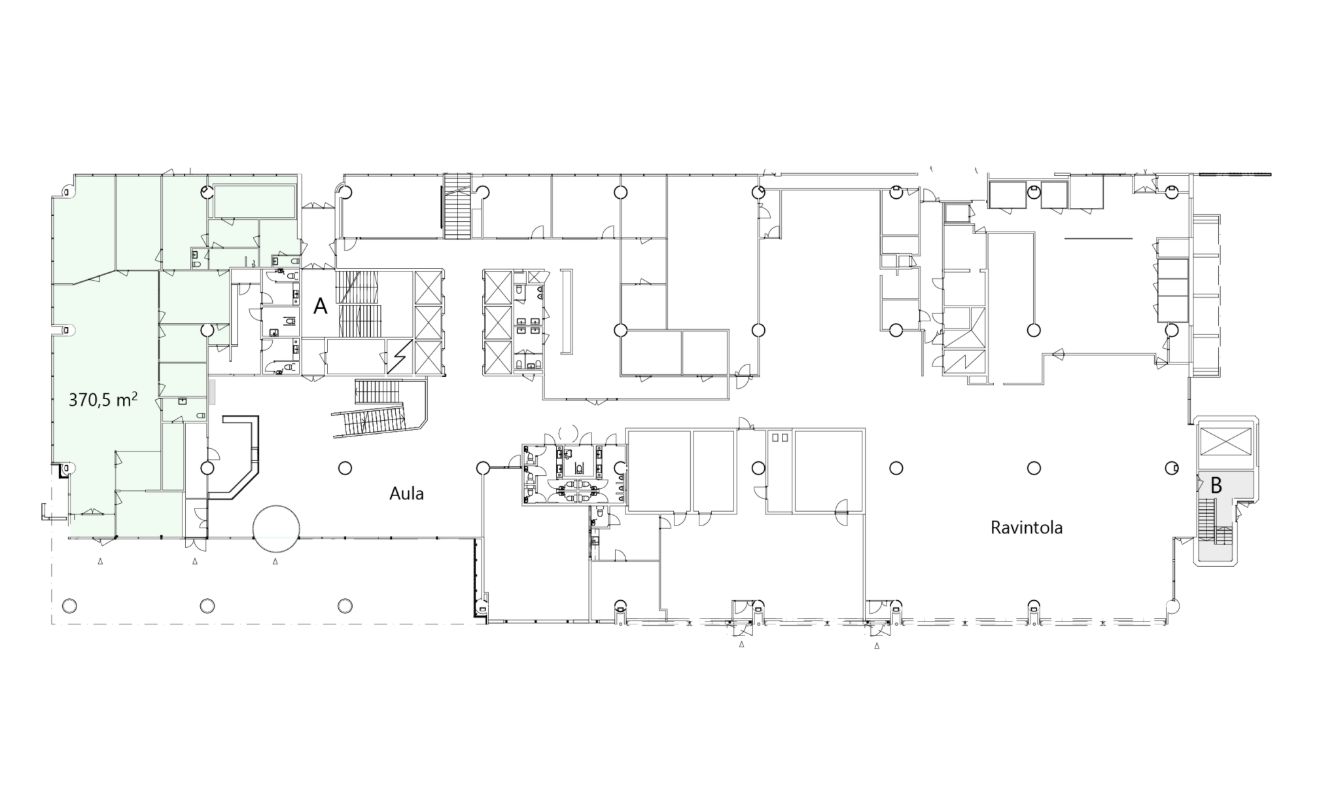
370 m2
Tilajako
Jaettavissa
Pohjapiirros
Kiinteistö
Yrityspuisto Bloomsville on 1970- ja 80-lukujen aikana rakennettu, energiataloudelliseksi päivitetty toimistokampus, joka sijaitsee tiiviisti rakennetulla kaupunkialueella, hyvien julkisten yhteyksien äärellä. Tilamuutokset suunnitellaan tyyliltään mahdollisimman aikaa kestäväksi ja toiminnallisuudeltaan helposti muovattaviksi. Bloomsvillen yleiset alueet, palvelut ja ominaisuudet on suunniteltu vastuullisuutta painottaen.
Sijainti
Turunväylän varrella Munkkiniemen päässä.
Pysäköinti
Parkkitilaa runsaasti 700 auton lämpimässä parkkihallissa.
Palvelut
Poikkeuksellisen laajat palvelut ja inspiroivat tilat parantavat työsuoritusta, auttavat palautumaan sekä kannustavat yhdessäoloon. Bloomsvillessä on aulavastaanotto, neuvottelukeskus, lounasravintola, kahvila, sosiaalitilat työmatkaliikkujille, kuntosali, ym.
Kulkuyhteydet
Bussipysäkki 250m
Ratikkapysäkki 500m
Juna-asema (Valimo) 1 km
Raide Jokeri 2 km
Ratikkapysäkki 500m
Juna-asema (Valimo) 1 km
Raide Jokeri 2 km
Vapautuu
Heti
Saneerausvuosi
2023
Kerros
1 / 5
Jaettavissa
Ota yhteyttä
Senaatin Notariaatti Oy LKV
Lämmittäjänkatu 4 A
FIN-00880 Helsinki
Tel:
Näytä puhelinnumero
+358 9 7745 100
Pyydä lisätietoa
