Vuokrataan tuotantotilat, varastotilat - Vantaa
Ansatie 6b, Veromies, 01740 Vantaa #10861911
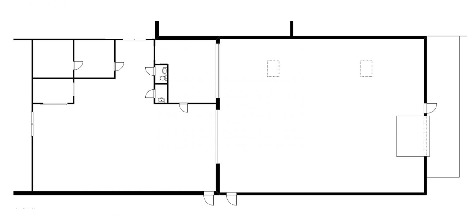
560 m2 kompakti 8 metriä korkea hallitilaa huippusijainnilla. Tila varusteltu 6,3 t siltanosturilla ja korkealla nosto-ovella.
Osoite
Ansatie 6b, 01740 Vantaa
Tilatyyppi
Tuotantotilaa
560 m2
Varastotilaa
560 m2
Yhteensä
560 m2
Kiinteistö
Omistaja vuokraa:
Huippusijainnilla lentokentän kupeessa ja Kehä III:n varressa n. 8 m korkeaa tuotannolliseen, että varastokäyttöön toimivaa tilaa toimivalla pohjalla. Suuri katutason nosto-ovi (4m x 4,2m) mahdollistaa toimivan logistiikan.
Hyväkuntoinen, kahdessa osassa oleva halli, jonka etuosa on varusteltu siltanosturilla (6,3 t) ja runsaat ikkunat tarjoavat mukavat puitteet työskentelylle. Reipas lattiakantavuus (5 000 kg/m2) saa tilan taipumaan moneen käyttöön.
+ Erinomainen sijainti ja hyvät yhteydet
+ Piha-alue
+ 8 m korkeus
+ 6,3 t siltanosturi
+ Hyvä lattiakantavuus
+ Heti vapaa
Ole yhteydessä ja katsotaan, vastaako tila tarpeitasi.
Huippusijainnilla lentokentän kupeessa ja Kehä III:n varressa n. 8 m korkeaa tuotannolliseen, että varastokäyttöön toimivaa tilaa toimivalla pohjalla. Suuri katutason nosto-ovi (4m x 4,2m) mahdollistaa toimivan logistiikan.
Hyväkuntoinen, kahdessa osassa oleva halli, jonka etuosa on varusteltu siltanosturilla (6,3 t) ja runsaat ikkunat tarjoavat mukavat puitteet työskentelylle. Reipas lattiakantavuus (5 000 kg/m2) saa tilan taipumaan moneen käyttöön.
+ Erinomainen sijainti ja hyvät yhteydet
+ Piha-alue
+ 8 m korkeus
+ 6,3 t siltanosturi
+ Hyvä lattiakantavuus
+ Heti vapaa
Ole yhteydessä ja katsotaan, vastaako tila tarpeitasi.
Sijainti
Sijainti Kehä III:n varrella ja lähellä lentokenttää.
Muuta
Kokonaisuuteen kuuluu hallitilojen lisäksi oma wc, sivuvarasto sekä toimistotila.
Vapautuu
Heti
Rakennusvuosi
1997
Kerros
1 / 1
Energiatehokkuusluokka
D2018
Katutasossa
Siltanosturi
Ota yhteyttä
Aktiivitilat AM Oy
Simo Hännikäinen
Puh:
Näytä puhelinnumero
040 528 1055
Aktiivitilat on kotimainen pääosin pienteollisuus- ja varastokiinteistöihin keskittyvä kiinteistönomistaja. Maantieteellisesti toimimme pääkaupunkiseudulla ja Tampereen seudulla. Tunnemme kohteemme ja ollessasi meihin yhteydessä saat aina ripeää, suoraviivaista ja asiantuntevaa palvelua.
https://www.aktiivitilat.fi/Pyydä lisätietoa
