Vuokrataan liiketilat - Oulu
Paulaharjuntie 20, Välivainio, 90530 Oulu #10861851
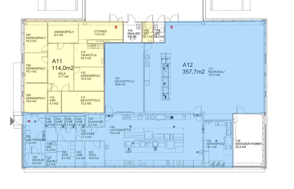
Lounasravintolatilaa Oulun Välivainiossa.
Tämä 357 m² tila koostuu noin 157 m² kokoisesta ruokasalista, n. 40 m² neuvottelu-/kabinettitilasta sekä n. 160 m² kokoisesta laitoskeittiöstä, johon sisältyy myös varastokylmiöt, varastot, astianpesutila sekä sosiaalitilat. Asiakaiden wc-tilat sijaitsevat kiinteistön sisääntuloaulassa. Vapautuminen 1.8.2026.
Paulaharjuntie on toimistokiinteistö Oulun Välivainiossa, joka sijaitsee hyvien kulkuyhteyksien varrella nelostien läheisyydessä. Oulun keskustan palvelut sijaitsevat alle 10 minuutin ajomatkan päässä. Lähellä on mm. päivittäistavarakauppa.
Kysy lisää numerosta 044 723 4700 tai info@bref.fi. Palvelumme on tilanhakijoille ilmainen.
Bureau Real Estate Finland Oy
Lars Sonckin kaari 16, 02600 Espoo
Näytä puhelinnumero
0447234700
Bureau Real Estate Finland Oy
https://www.bref.fi