Vuokrataan toimistotilat - Helsinki
Kaisaniemenkatu 1, Keskusta, 00100 Helsinki #10861836
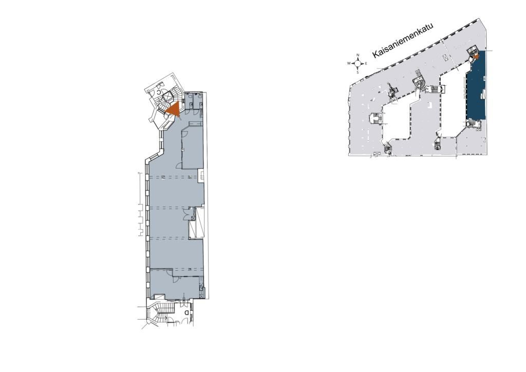
Vapautumassa syksyllä 2026 neljännen kerroksen moderni 237 m² toimisto Helsingin keskustasta. Tila koostuu pääosin avotilasta. Tilasta löytyy oma keittiöalue, sekä wc-tilat.
Kiinteistön ympäristöstä löytyvät monipuoliset palvelut. Sijainti on hyvien julkisten liikenteen yhteyksien päässä. Kellaritiloihin on uusittu suihku- ja pukutilat. Kiinteistölle on rakennettu turvallinen pyörien säilytysmahdollisuus ja latausmahdollisuus sähköpyörille.
Kysy lisätietoja tai sovitaan käynti kohteelle jo tänään!
Hissi
Hausala Oy
Erkkilänkatu 11, 33100 Tampere
Näytä puhelinnumero
050 472 7077
Mikko Ranta
Näytä puhelinnumero
050 360 6500
Mika Savikko
Näytä puhelinnumero
050 472 7077
