Vuokrataan toimistotilat - Espoo
Metsänpojankuja 1, Pohjois-Tapiola, 02130 Espoo #10861829
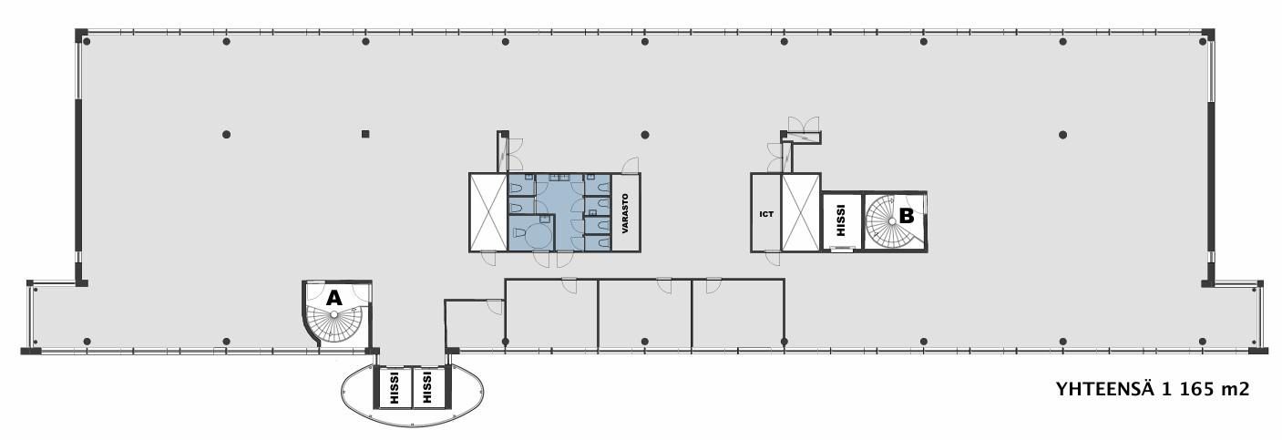
Maarinportti - Toimisto 1165 m²
Osoite
Metsänpojankuja 1, 02130 Espoo
Tilatyyppi
Toimistotilaa
1165 m2
Pohjapiirros
Kiinteistö
Uutta toimistotilaa
Tämä 1165 m²:n (750 m²) toimistokerroksen tila tarjoaa tilat noin 50–100 työpisteelle. Tilankäyttöratkaisuihin ja materiaalivalintoihin voi vaikuttaa, joten voit luoda juuri sinun yrityksellesi sopivan työympäristön. Käytössäsi on myös vuokranantajan tarjoama sisustussuunnittelija, joka auttaa toteuttamaan visiosi. Ota yhteyttä, niin kerromme lisää!
Espoon MaarinPortti – Monipuoliset ja mukautuvat toimitilat
MaarinPortti tarjoaa moderneja ja muunneltavia toimitiloja Pohjois-Tapiolassa, jotka suunnitellaan yksilöllisesti vastaamaan yrityksesi tarpeita. Tulevalla asiakkaalla on mahdollisuus vaikuttaa oman toimistonsa lopullisiin materiaali- ja toimitilaratkaisuihin. Muutos on helppoa, sillä käytettävissä on tilasuunnittelijan palvelut, jotta yrityksesi tilaratkaisuista saadaan toimiva ja sujuva kokonaisuus.
Tervetuloa MaarinPorttiin – tulevaisuuden toimitiloihin, joissa yrityksesi voi kasvaa ja menestyä!
Sijainti
MaarinPortti sijaitsee Pohjois-Tapiolassa, Kehä I:n ja Tapiolan liittymän välittömässä läheisyydessä. Tämä 6-kerroksinen toimitilakiinteistö yhdistyy Otaniemen länsiosassa olevaan Maarin alueeseen Kehä I:n yli menevän Maarinsillan kautta. Alueen kehittyminen ja Raidejokerin sujuvat yhteydet tekevät alueesta vetovoimaisen ja houkuttelevan yritysalueen.
MaarinPorttiin on helppo saapua niin julkisilla kulkuvälineillä kuin autolla. Kiinteistön oma pysäköintihalli takaa vaivattoman pysäköinnin, ja uudistuksen yhteydessä sinne lisätään myös sähköautojen latauspisteitä. Kehä I:tä pitkin kulkevat lukuisat bussit, ja runkolinja 550 palvelee erityisen hyvin MaarinPorttiin saapuvia. Raidejokerin pysäkille kävelee 5 minuutissa. Lähin metroasema, Aalto-yliopisto, on vain 15 minuutin kävelymatkan päässä. Tapiolan keskus ja Kauppakeskus Ainoan kattavat palvelut ovat noin 2 km päässä, ja merellinen Laajalahden luonnonsuojelualue sekä Espoon rantaraitti ovat vain 8 minuutin kävelymatkan päässä.
Palvelut
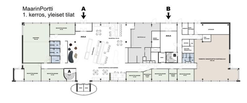
MaarinPortti tarjoaa laadukkaita palveluita, jotka tukevat yrityksesi toimintaa ja työntekijöiden hyvinvointia. Kiinteistön täysin uudistunut aula toivottaa vieraat tervetulleiksi, ja sisääntulon yhteydessä tammikuussa 2026 avannut lounasravintola Factory täydentää palvelukokonaisuutta tarjoten monipuolisia lounasvaihtoehtoja sekä catering‑palveluja.
Kiinteistössä on lisäksi vuokrattavia neuvottelutiloja ja auditorio. 6. kerros voidaan keskittää kokonaan työhyvinvointia edistäville toiminnoille, kuten aktiivisuuteen ja liikuntaan. Kerroksesta löytyy myös katettu näköalaterassi, joka luo upeat puitteet rentoutumiseen ja sosiaaliseen kanssakäymiseen.
Lähialueella on runsaasti lisäpalveluita, kuten muita lounasravintoloita ja ruokakauppa, mikä lisää alueen käytännöllisyyttä ja viihtyisyyttä entisestään.
Vastuullisuus
MaarinPortti on saneerattu vuosien 2024-2025 aikana, ja tavoitteena on saavuttaa LEED Platinum -tason ympäristösertifikaatti. Tämä on kansainvälisen LEED-sertifiointijärjestelmän korkein taso, joka kertoo erinomaisesta ympäristöasioiden huomioimisesta. Korjausrakentamisessa syntyy uudisrakentamista vähäisemmät materiaalipäästöt, kun kiinteistön runkorakenteet säilytetään.
MaarinPortin modernit toimitilat ovat muunneltavia ja suunnitellaan yksilöllisesti vastaamaan yrityksesi tarpeita. Tulevalla asiakkaalla on mahdollisuus vaikuttaa toimitilaratkaisuihin ja materiaalivalintoihin, mikä tekee tiloista juuri sinun yrityksellesi sopivat.
Ota yhteyttä
Kiinnostuitko? Ota yhteyttä ja tule tutustumaan tiloihin!
Toimitilavälityspalvelumme on tilanhakijalle maksuton.
Tämä 1165 m²:n (750 m²) toimistokerroksen tila tarjoaa tilat noin 50–100 työpisteelle. Tilankäyttöratkaisuihin ja materiaalivalintoihin voi vaikuttaa, joten voit luoda juuri sinun yrityksellesi sopivan työympäristön. Käytössäsi on myös vuokranantajan tarjoama sisustussuunnittelija, joka auttaa toteuttamaan visiosi. Ota yhteyttä, niin kerromme lisää!
Espoon MaarinPortti – Monipuoliset ja mukautuvat toimitilat
MaarinPortti tarjoaa moderneja ja muunneltavia toimitiloja Pohjois-Tapiolassa, jotka suunnitellaan yksilöllisesti vastaamaan yrityksesi tarpeita. Tulevalla asiakkaalla on mahdollisuus vaikuttaa oman toimistonsa lopullisiin materiaali- ja toimitilaratkaisuihin. Muutos on helppoa, sillä käytettävissä on tilasuunnittelijan palvelut, jotta yrityksesi tilaratkaisuista saadaan toimiva ja sujuva kokonaisuus.
Tervetuloa MaarinPorttiin – tulevaisuuden toimitiloihin, joissa yrityksesi voi kasvaa ja menestyä!
Sijainti
MaarinPortti sijaitsee Pohjois-Tapiolassa, Kehä I:n ja Tapiolan liittymän välittömässä läheisyydessä. Tämä 6-kerroksinen toimitilakiinteistö yhdistyy Otaniemen länsiosassa olevaan Maarin alueeseen Kehä I:n yli menevän Maarinsillan kautta. Alueen kehittyminen ja Raidejokerin sujuvat yhteydet tekevät alueesta vetovoimaisen ja houkuttelevan yritysalueen.
MaarinPorttiin on helppo saapua niin julkisilla kulkuvälineillä kuin autolla. Kiinteistön oma pysäköintihalli takaa vaivattoman pysäköinnin, ja uudistuksen yhteydessä sinne lisätään myös sähköautojen latauspisteitä. Kehä I:tä pitkin kulkevat lukuisat bussit, ja runkolinja 550 palvelee erityisen hyvin MaarinPorttiin saapuvia. Raidejokerin pysäkille kävelee 5 minuutissa. Lähin metroasema, Aalto-yliopisto, on vain 15 minuutin kävelymatkan päässä. Tapiolan keskus ja Kauppakeskus Ainoan kattavat palvelut ovat noin 2 km päässä, ja merellinen Laajalahden luonnonsuojelualue sekä Espoon rantaraitti ovat vain 8 minuutin kävelymatkan päässä.
Palvelut
MaarinPortti tarjoaa laadukkaita palveluita, jotka tukevat yrityksesi toimintaa ja työntekijöiden hyvinvointia. Kiinteistön täysin uudistunut aula toivottaa vieraat tervetulleiksi, ja sisääntulon yhteydessä tammikuussa 2026 avannut lounasravintola Factory täydentää palvelukokonaisuutta tarjoten monipuolisia lounasvaihtoehtoja sekä catering‑palveluja.
Kiinteistössä on lisäksi vuokrattavia neuvottelutiloja ja auditorio. 6. kerros voidaan keskittää kokonaan työhyvinvointia edistäville toiminnoille, kuten aktiivisuuteen ja liikuntaan. Kerroksesta löytyy myös katettu näköalaterassi, joka luo upeat puitteet rentoutumiseen ja sosiaaliseen kanssakäymiseen.
Lähialueella on runsaasti lisäpalveluita, kuten muita lounasravintoloita ja ruokakauppa, mikä lisää alueen käytännöllisyyttä ja viihtyisyyttä entisestään.
Vastuullisuus
MaarinPortti on saneerattu vuosien 2024-2025 aikana, ja tavoitteena on saavuttaa LEED Platinum -tason ympäristösertifikaatti. Tämä on kansainvälisen LEED-sertifiointijärjestelmän korkein taso, joka kertoo erinomaisesta ympäristöasioiden huomioimisesta. Korjausrakentamisessa syntyy uudisrakentamista vähäisemmät materiaalipäästöt, kun kiinteistön runkorakenteet säilytetään.
MaarinPortin modernit toimitilat ovat muunneltavia ja suunnitellaan yksilöllisesti vastaamaan yrityksesi tarpeita. Tulevalla asiakkaalla on mahdollisuus vaikuttaa toimitilaratkaisuihin ja materiaalivalintoihin, mikä tekee tiloista juuri sinun yrityksellesi sopivat.
Ota yhteyttä
Kiinnostuitko? Ota yhteyttä ja tule tutustumaan tiloihin!
Toimitilavälityspalvelumme on tilanhakijalle maksuton.
Vapautuu
Kysy
Kerros
2-5
Ota yhteyttä
Logistila Oy
Kylätie 11-13, 00320 HELSINKI
Karoliina Turppo
Näytä puhelinnumero
050 345 3258
Pyydä lisätietoa
