Vuokrataan toimistotilat - Iisalmi
Savonkatu 23, 74100 Iisalmi #10861818
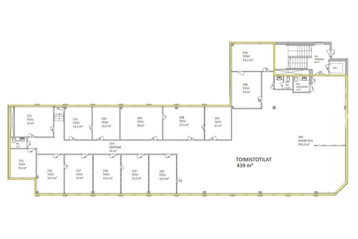
Toimistotiloja Iisalmen sydämessä – 14 toimistohuonetta ja monipuoliset tilat
Tämä 439 neliön toimistotila sijaitsee Iisalmen keskustassa osoitteessa Savonkatu 23, tarjoten erinomaisen sijainnin liiketoiminnallesi. Juna-asema on kävelymatkan päässä, vain 400 metrin etäisyydellä, mikä takaa sujuvat yhteydet.
Tilat koostuvat avoimesta aulasta sekä 14 erillistä toimistohuonetta, jotka mahdollistavat monipuolisen käytön ja joustavan tilankäytön. Kolme wc-tilaa palvelee henkilökunnan ja asiakkaiden tarpeita. Pohjaratkaisu soveltuu erinomaisesti sekä yhden yrityksen että usean toimijan yhteiskäyttöön.
Käytännölliset asiat on järjestetty huolellisesti: sähkö laskutetaan kuukausittain ja vesi toiminnan mukaisesti. Vuokralainen vastaa oman internetyhteyden hankkimisesta tiloihin. Vuokrasopimus tehdään toistaiseksi voimassa olevaksi, ja siihen toivotaan 12 kuukauden sitoutumisaikaa.
Vakuutena maksetaan kolmen kuukauden vuokraa vastaava summa. Vuokra sidotaan elinkustannusindeksiin, mikä takaa ennakoitavuuden molemmille osapuolille.
Varaa esittelyaika jo tänään ja tutustu näihin monipuolisiin liiketiloihin Iisalmen parhaalla sijainnilla!
Aspa Palvelut Oy
R-Kioski
Savon Ict-Palvelut Oy
Järviseudun työterveys Oy (tulossa)

Fine LKV
Minna Moisio
Toimitilavuokraus, LKV
Näytä puhelinnumero
0505417349
minna@finelkv.fi
Leväsentie 2, 70700 Kuopio
Yliopistonkatu 28, 40100 Jyväskylä
Toimin kaupallisena managerina ja toimitilavuokraajana, otathan yhteyttä jos mietit mahdollisia muutostöitä tai esillä olevista toimitiloista ei löydy sitä mitä etsit. Selvitetään muut tila mahdollisuudet. Asiakaslähtöisyys on minulle tärkeää sekä asioiden sujuvuus. Ota yhteyttä, mielelläni autan sinua.