Vuokrataan toimistotilat - Helsinki
Mariankatu 11, Kruununhaka, 00170 Helsinki #10861783
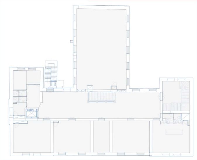
Vuokrattavana toimistotilaa toisessa kerroksessa, tilassa myös yhteiskäyttöinen keittiö. 1. ja 2. kerroksen tilat on yhdistetty avoportailla. Ohessa havainnollistavia kuvia kiinteistön tiloista ja esimerkki-pohjakuva toimistokerroksesta.
Entiseen kouluun kunnostetut, persoonalliset toimistotilat tarjoavat ainutlaatuisen kodin luovalle työlle. Ensimmäisten kerrosten korkeat ja valoisat luokkahuoneet sekä juhlasalit on muutettu moderneiksi monitiloiksi. Kolmannessa kerroksessa nautitaan puolestaan rauhallisemmasta ja kodikkaammasta tunnelmasta matalammissa työtiloissa.
Kruununhaassa sijaitseva uusrenessanssinen koulurakennus rakennettiin Ruotsalaiselle reaalilyseolle 1877 ja se on peruskorjattu vuosina 2015-2016. Kiinteistön kellarikerroksesta löytyy kokoushuoneita ja sosiaalitilat.
Lisätietoja numerosta 020 7290 710. Lisää kohteita osoitteessa www.premises.fi.
Kohteella ei ole lain edellyttämää energiatodistusta tai energialuokka ei tiedossa.Kerros: 2
CRE PREMISES
Puh. Näytä puhelinnumero 020 7290 710
Vantaankoskentie 14
01670 VANTAA
