Vuokrataan toimistotilat - Tampere
Hatanpäänkatu 1, Hatanpää, 33900 Tampere #10861747
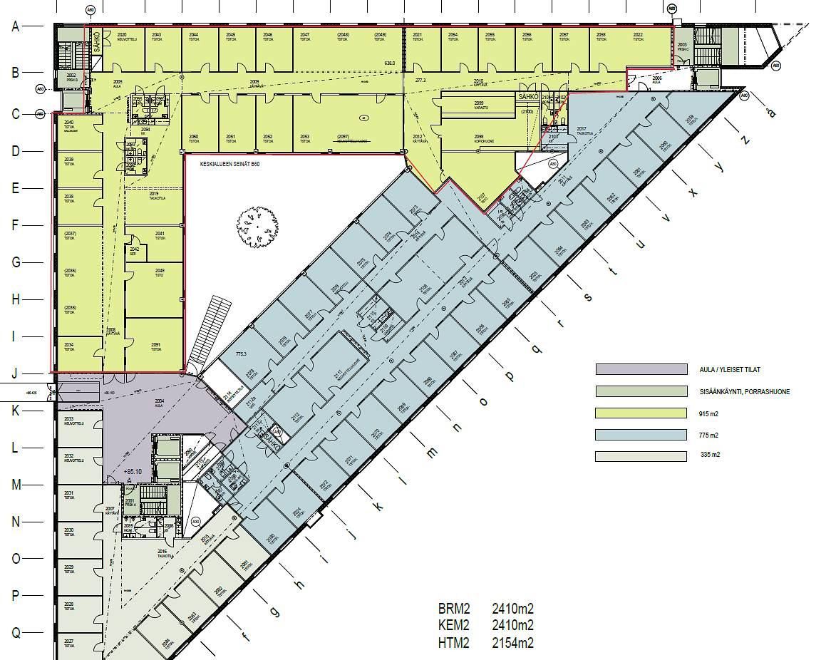
Vuokrataan Tampereen Hatanpäältä toisen kerroksen siisti 915 m² toimistotila.
Talossa on hyvät palvelut mm. aulapalvelu sekä erilaisia neuvottelu- ja edustustiloja eri tarpeisiin. Talossa on myös 200 paikkainen lounasravintola.
Kysy rohkeasti lisätietoja ja sovitaan käynti kohteella jo tänään!
Osoite
Hatanpäänkatu 1, 33900 Tampere
Tilatyyppi
Toimistotilaa
915 m2
Kiinteistö
Kulma-Sarvis
Palvelut
Asiakaspysäköinti, aulapalvelut, edustustila, kokoustilat, kuntosali, pysäköintihalli, pyöräparkki, ravintola, sauna ja suihkutilat.
Vapautuu
Kysy
Rakennusvuosi
1996
Kerros
2
Ympäristöluokitus
BREEAM
Hissi
Ota yhteyttä
Hausala Oy
Erkkilänkatu 11, 33100 Tampere
Näytä puhelinnumero
050 472 7077
Mikko Ranta
Näytä puhelinnumero
050 360 6500
Tero Ala-Hannula
Näytä puhelinnumero
040 508 1351
Pyydä lisätietoa
