Vuokrataan toimistotilat - Helsinki
Paciuksenkatu 21, Meilahti, 00270 Helsinki #10861744
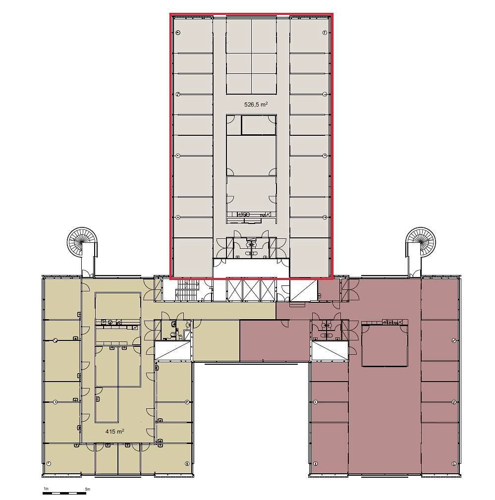
Vuokrataan Helsingin Meilahdesta neljännen kerroksen moderni 526,5 m² toimistotila.
Focus tarjoaa modernin, rauhallisen ja jäähdytetyn työympäristön kattavilla palveluilla. Talosta löytyvät aulapalvelut, edustustilat, lounasravintola, sauna sekä sosiaalitilat. Tila on muokattavissa käyttäjän tarpeiden mukaan
Rakennus on valmistunut 2002. Kiinteistöllä on pysäköintipaikkoja runsaasti pihalla sekä kellarissa kahdessa tasossa.
Julkiset liikenneyhteydet ovat hyvät. Munkkiniemen, Otaniemen ja Huopalahdentien bussi- ja raitiovaunulinjat ovat lähietäisyydellä.
Kysy rohkeasti lisätietoja ja sovitaan käynti kohteella jo tänään!
Hissi
Hausala Oy
Erkkilänkatu 11, 33100 Tampere
Näytä puhelinnumero
050 472 7077
Mikko Ranta
Näytä puhelinnumero
050 360 6500
Mika Savikko
Näytä puhelinnumero
050 472 7077
