Vuokrataan toimistotilat - Espoo
Piispanportti 10, Kuitinmäki, 02200 Espoo #10861692
Tarjolla modernia toimistotilaa Espoon Kuitinmäessä.
Osoite
Piispanportti 10, 02200 Espoo
Tilatyyppi
Toimistotilaa
1407 m2
Kiinteistö
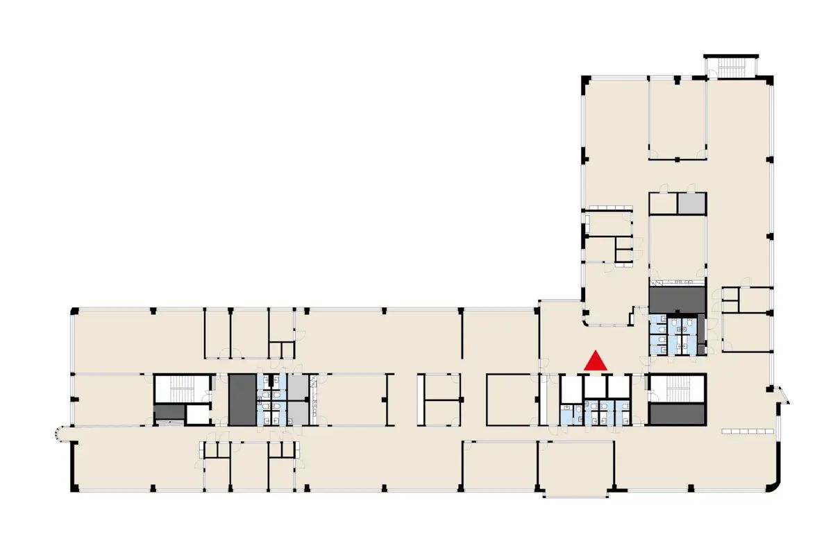
Tarjolla 4. kerroksen muunneltava toimistotila, jossa on avointa työskentelytilaa, neuvotteluhuoneita sekä keittiö- ja wc-tilat. Tilat uudistetaan yrityskohtaisesti ja ne on halutessa yhdistettävissä myös 5. ja 6. kerrokseen. Erinomainen saavutettavuus: autolla, pyörällä, metrolla tai bussilla.
- Aulapalvelu
- Lounasravintola
- Kokoustiloja
- Pysäköintihalli
Kysy lisää, jos kiinnostuit !
- Aulapalvelu
- Lounasravintola
- Kokoustiloja
- Pysäköintihalli
Kysy lisää, jos kiinnostuit !
Kiinteistön palvelut
Aulapalvelut, Kokoustilat, Pysäköintihalli, Ravintola
Vapautuu
Heti vapaa
Kerros
4.
Ota yhteyttä
Arvotilat
info@arvotilat.fi
Näytä puhelinnumero
+358 40 555 8106
Näytä puhelinnumero
+358 44 563 6441
Pyydä lisätietoa
