Vuokrataan toimistotilat - Espoo
Metsänpojankuja 1, Pohjois-Tapiola, 02130 Espoo #10861678
Tarjolla modernisoituvasta MaarinPortista muunneltavia toimitiloja Pohjois-Tapiolan ja Otaniemen rajalla.
Osoite
Metsänpojankuja 1, 02130 Espoo
Tilatyyppi
Toimistotilaa
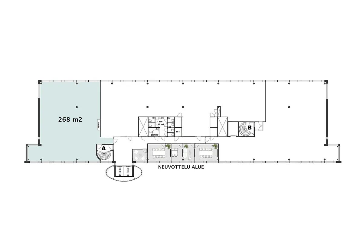
267 m2
Kiinteistö
MaarinPortti sijaitsee Pohjois-Tapiolan ja Otaniemen Maarin alueen rajalla ja uudistuu parhaillaan kokonaisvaltaisessa modernisointi- ja saneeraushankkeessa. Kuusikerroksisesta kiinteistöstä kehitetään moderni, vastuullinen ja korkeatasoinen toimitilakokonaisuus, joka vastaa tämän päivän yritysten muuttuviin työympäristövaatimuksiin.
Tarjolla on joustavasti muunneltavia toimitiloja eri kokoisille toimijoille — vapaita tiloja on saatavilla noin 198–3495 m² välillä. Tilat suunnitellaan käyttäjäkohtaisesti, ja tulevalla vuokralaisella on mahdollisuus vaikuttaa toimistonsa materiaalivalintoihin sekä tilaratkaisuihin jo suunnitteluvaiheessa.
Ole yhteydessä meihin, jos kiinnostuit !
Tarjolla on joustavasti muunneltavia toimitiloja eri kokoisille toimijoille — vapaita tiloja on saatavilla noin 198–3495 m² välillä. Tilat suunnitellaan käyttäjäkohtaisesti, ja tulevalla vuokralaisella on mahdollisuus vaikuttaa toimistonsa materiaalivalintoihin sekä tilaratkaisuihin jo suunnitteluvaiheessa.
Ole yhteydessä meihin, jos kiinnostuit !
Pysäköinti
Kiinteistössä pysäköintihalli ja ulkopysäköintialue
Vapautuu
Valmistuva kohde
Energiatehokkuusluokka
A
Ota yhteyttä
Arvotilat
info@arvotilat.fi
Näytä puhelinnumero
+358 40 555 8106
Näytä puhelinnumero
+358 44 563 6441
Pyydä lisätietoa
