Vuokrataan toimistotilat - Helsinki
Lintulahdenkuja 4, 00530 Helsinki #10861653
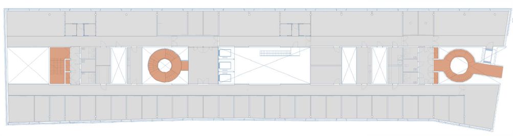
Vuokrattavana monitilaa Sörnäisten rantatien läheisyydessä sijaitsevassa toimistokorttelista. Ohessa havainnollistavia kuvia kiinteistön tiloista ja esimerkki pohjakuva toimistokerroksesta.
Lintulahden toimistokortteli sijaitsee Kallion ja Sörnäisten läheisyydessä, Sörnäisten Nesteen takana. Korttelissa on tarjolla moderneja toimistotiloja monitilaympäristössä.
Vuokralaisten käytössä on laaja kokouskeskus, johon kuuluu muun muassa 102-paikkainen auditorio. Lisäksi kiinteistön kellaritiloista on vuokrattavissa autopaikkoja. Alueella toimii useita henkilöstöravintoloita, mikä tukee työpäivän sujuvuutta ja palveluiden saatavuutta.
Lisätietoja numerosta 020 7290 710. Lisää kohteita osoitteessa www.premises.fi.
Kohteella ei ole lain edellyttämää energiatodistusta tai energialuokka ei tiedossa.Kerros: 2
CRE PREMISES
Puh. Näytä puhelinnumero 020 7290 710
Vantaankoskentie 14
01670 VANTAA
