Vuokrataan liiketilat - Pirkkala
Autokeskuksentie 12, Linnakallio, 33960 Pirkkala #10861614
Osoite
Autokeskuksentie 12, 33960 Pirkkala
Tilatyyppi
Liiketilaa
735 m2
Muuta
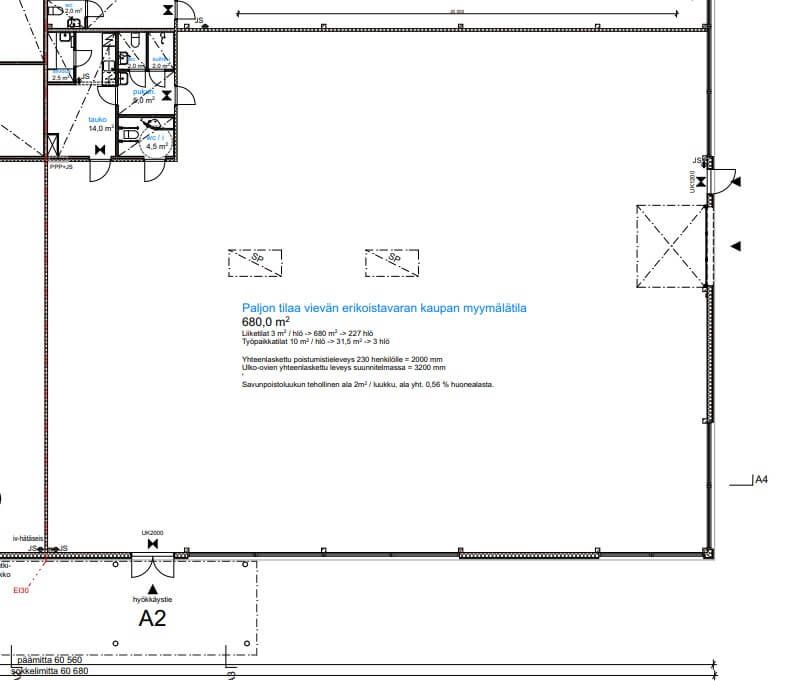
Vapautumassa vuokrattavaksi 1.5.2026 alkaen näyttävä liiketila. Toimitila on katutasossa ja se sisältää pienet sosiaalitilat. Tilassa on nosto-ovi sekä erillinen sisäänkäynti. Kohteella on pihatilaa runsaasti. Toimitila soveltuu hyvin showroom/liiketilakäyttöön, varastoksi tai pientuotannon käyttöön.
Kysy lisää
Niklas Sivula 050 472 8090 niklas.sivula@kiinteistotahkola.fi
Jani Kaisto 040 960 6424 jani.kaisto@kiinteistotahkola.fi
Kysy lisää
Niklas Sivula 050 472 8090 niklas.sivula@kiinteistotahkola.fi
Jani Kaisto 040 960 6424 jani.kaisto@kiinteistotahkola.fi
Vapautuu
Heti vapaa
Ota yhteyttä
Kiinteistö-Tahkola Oy
Kuokkamaantie 4, 33800 Tampere
Näytä puhelinnumero
044 705 0522
Niklas Sivula
Pyydä lisätietoa
