Myydään autotalli/-hallitilat - Jyväskylä
Varasto- ja hallitila, Hämeenpohjantie 39, 40520 Jyväskylä #10861607
Erinomaiselle sijainnille Hämeenpohjantien varteen rakentuu moderni hallikiinteistö, joka tarjoaa monipuolisia ja muunneltavia halli- ja varastotiloja erilaisiin tarpeisiin!
Osoite
Hämeenpohjantie 39, 40520 Jyväskylä
Tilatyyppi
Autotalli/-hallitilaa
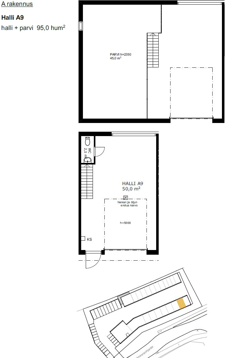
95 m2
Pohjapiirros
Myyntihinta
65 625 € velaton myyntihinta 147 000 €
Kiinteistö
Tiloja on saatavilla pienistä varastoista suuriin, yli 200 m²:n hallitiloihin, ja nosto-ovelliset tilat on suunniteltu helposti muunneltaviksi ja tehokkaaseen käyttöön. Tarvitsetpa säilytystilaa tai tilaa yritystoimintaan, molemmat onnistuu. Mikäli tila tulee alvilliseen käyttöön, saa ostaja rakennuskustannuksista tehtävän alv-palautuksen itselleen.
Valikoimasta löytyy muun muassa 60 m²:n tiloja, joihin sisältyy 10 m²:n parvi + wc, sekä 40 m²:n tiloja, joissa on valmius parvelle ja wc:lle. Lisäksi tarjolla on kompakteja 10 m²:n varastoja käyntiovella. Jokainen tila on suunniteltu toimivaksi ja helposti muokattavaksi käyttäjän tarpeiden mukaan.
Perusvarusteluun kuuluu voimavirta, LED-valaistus, palosammutin, vesitiivis lattia, vesikiertoinen lattialämmitys sekä tilakohtainen sähkömittaus. Varustelutasoa voi täydentää esimerkiksi moottoroidulla nosto-ovella, käyntiovella, kylmällä vesipisteellä, wc:llä tai wc-varauksella, öljynerotuksellisella lattiakaivolla, pesumahdollisuudella, koneellisella poistoilmanvaihdolla sekä tilakohtaisella lämmönmittauksella.
Valikoimasta löytyy muun muassa 60 m²:n tiloja, joihin sisältyy 10 m²:n parvi + wc, sekä 40 m²:n tiloja, joissa on valmius parvelle ja wc:lle. Lisäksi tarjolla on kompakteja 10 m²:n varastoja käyntiovella. Jokainen tila on suunniteltu toimivaksi ja helposti muokattavaksi käyttäjän tarpeiden mukaan.
Perusvarusteluun kuuluu voimavirta, LED-valaistus, palosammutin, vesitiivis lattia, vesikiertoinen lattialämmitys sekä tilakohtainen sähkömittaus. Varustelutasoa voi täydentää esimerkiksi moottoroidulla nosto-ovella, käyntiovella, kylmällä vesipisteellä, wc:llä tai wc-varauksella, öljynerotuksellisella lattiakaivolla, pesumahdollisuudella, koneellisella poistoilmanvaihdolla sekä tilakohtaisella lämmönmittauksella.
Vapautuu
Kohde valmistuu joulukuussa 2026
Rakennusvuosi
2026
Ota yhteyttä
Kiinteistömaailma Tourula
Vapaaherrantie 2
40100 JYVÄSKYLÄ
Sanna Hotanen
Näytä puhelinnumero
040 581 8201
Visa Suojanen
Näytä puhelinnumero
040 352 4293
sanna.hotanen@kiinteistomaailma.fi visa.suojanen@kiinteistomaailma.fi
Katso lisää kohteesta
https://www.kiinteistomaailma.fi/jyvaskyla_myytavat_autotallitPyydä lisätietoa
