Vuokrataan toimistotilat - Iisalmi
Savonkatu 26, 74100 Iisalmi #10861588
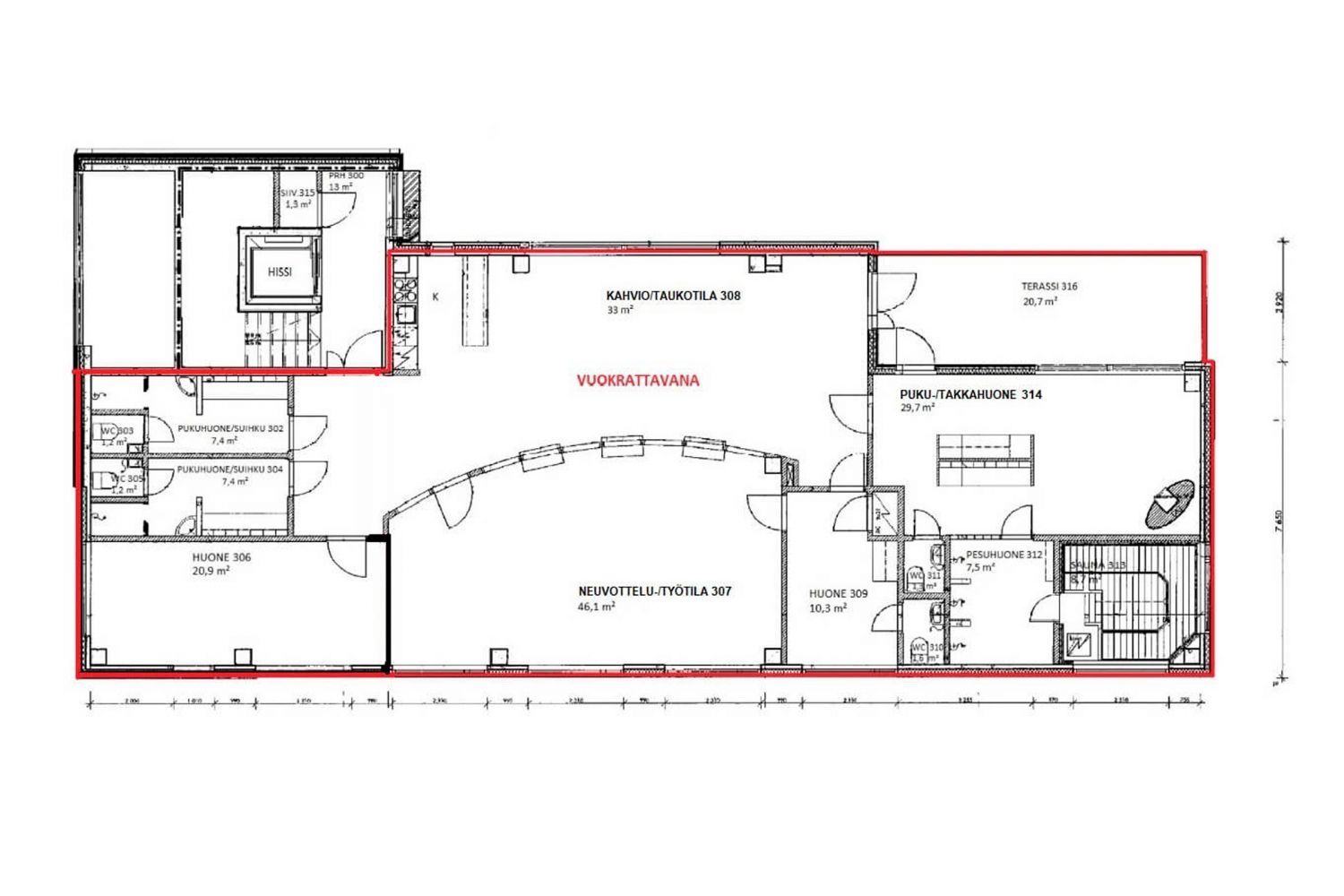
Monipuolinen toimistotila Iisalmen sydämessä
Savonkadulla sijaitseva 210 neliömetrin toimitila tarjoaa erinomaisen mahdollisuuden yrityksellesi kasvaa ja kehittyä Iisalmen keskustassa. Sijainti on lyömätön – vain 200 metrin päässä juna-asemalta ja lähellä kaikkia keskeisiä palveluita.
Tilat on suunniteltu monipuoliseen toimistokäyttöön. Kahden toimistotilan lisäksi löydät erillisen neuvottelu- tai työhuoneen, jossa voit järjestää kokouksia tai keskittyä vaativampiin tehtäviin. Mukava kahvio- ja taukotila luo viihtyisän ympäristön työpäivien lomaan.
Henkilöstön mukavuus on huomioitu erinomaisesti: kaksi erillistä wc-tilaa, kaksi pukuhuonetta ja jopa oma sauna tarjoavat poikkeuksellisen hyvät työskentelyolosuhteet. Lasitettu 22 neliömetrin terassi tuo lisää tilaa ja valoisuutta.
Vuokrasopimus tehdään toistaiseksi voimassa olevana, ja toivomme 12 kuukauden sitoutumisaikaa. Vakuus on kolmen kuukauden vuokraa vastaava summa. Sähkö laskutetaan erikseen, ja vuokralainen hankkii tilaan oman internetyhteyden.
Varaa esittelyaika ja tule kokemaan, miten nämä monipuoliset tilat voivat tukea yrityksesi menestystä!
Pohjois-Savon Käräjäoikeus ja Edunvalvonta
Makkonen Yhtiöt toimisto
Asianajotoimisto Kääriäinen Oy (tulossa)

Fine LKV
Minna Moisio
Toimitilavuokraus, LKV
Näytä puhelinnumero
0505417349
minna@finelkv.fi
Leväsentie 2, 70700 Kuopio
Yliopistonkatu 28, 40100 Jyväskylä
Toimin kaupallisena managerina ja toimitilavuokraajana, otathan yhteyttä jos mietit mahdollisia muutostöitä tai esillä olevista toimitiloista ei löydy sitä mitä etsit. Selvitetään muut tila mahdollisuudet. Asiakaslähtöisyys on minulle tärkeää sekä asioiden sujuvuus. Ota yhteyttä, mielelläni autan sinua.