Vuokrataan toimistotilat - Iisalmi
Kauppakatu 21, 740100 Iisalmi #10861575
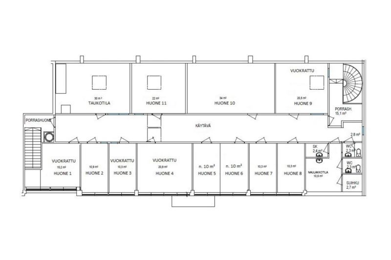
Toimistohuone keskustan sydämessä - Kauppakatu 21, Iisalmi
Tarjoamme vuokralle viihtyisän 22 neliömetrin toimistohuoneen Iisalmen keskustassa, osoitteessa Kauppakatu 21. Sijainti on erinomainen liiketoiminnalle - kaikki keskustan palvelut ja asiakasvirrat ovat käden ulottuvilla.
Toimistohuone sopii erinomaisesti pienyrittäjälle tai freelancerille, joka kaipaa rauhallista ja ammattimaista työympäristöä. Tiloihin kuuluvat yhteiskäytössä olevat taukotila ja sosiaalitilat, jotka tarjoavat mukavia mahdollisuuksia verkostoitumiseen ja työviihtyvyyden parantamiseen.
Kulkuyhteydet ovat erinomaiset - juna-asema sijaitsee vain noin 500 metrin päässä, mikä helpottaa liikematkustamista ja tekee sijainnista houkuttelevan myös asiakkaiden näkökulmasta. Vesi sisältyy vuokraan, ja sähkökorvaus laskutetaan kerran kuukaudessa käytön mukaan.
Toimistohotellitila remontoitu kauttaaltaan 2020, joten työskentelyolosuhteet ovat nykyaikaiset ja viihtyisät. Vuokrasopimus tehdään toistaiseksi voimassa olevana, ja sitoutumisaikaa toivotaan 12 kuukautta alkaen sopimuskauden alusta. Vakuus on kolmen kuukauden vuokran suuruinen.
Varaa esittely jo tänään ja tutustu tähän erinomaiseen liiketilaan Iisalmen parhaalla paikalla!
Tarjolla useita eri kokoisia tiloja samassa kohteessa (10 m², 22 m² ja 34 m²) – kysy lisää vaihtoehdoista!
Posti / palvelupiste: Noin 140m päässä.
Huonekalukeidas Oy
Stemma
Kulta Kotipalvelut
Pohjois-Savon Muisti ry
Ravintola Butterfly
Iljan Isännöintikeskus Oy
Savon Juristit Oy
Pohjois-Savon Ely Keskus
Ykköstapahtumat Oy

Fine LKV
Minna Moisio
Toimitilavuokraus, LKV
Näytä puhelinnumero
0505417349
minna@finelkv.fi
Leväsentie 2, 70700 Kuopio
Yliopistonkatu 28, 40100 Jyväskylä
Toimin kaupallisena managerina ja toimitilavuokraajana, otathan yhteyttä jos mietit mahdollisia muutostöitä tai esillä olevista toimitiloista ei löydy sitä mitä etsit. Selvitetään muut tila mahdollisuudet. Asiakaslähtöisyys on minulle tärkeää sekä asioiden sujuvuus. Ota yhteyttä, mielelläni autan sinua.