Vuokrataan toimistotilat - Iisalmi
Kauppakatu 21, 740100 Iisalmi #10861574
Toimiva toimistohuone loistavalla sijainnilla Iisalmen ytimessä
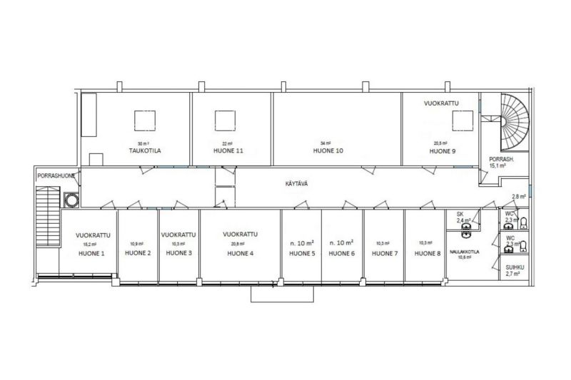
Etsitkö käytännöllistä ja helppoa toimitilaa yrityksesi tarpeisiin? Iisalmen ydinkeskustassa, osoitteessa Kauppakatu 21, tarjoutuu vuokralle 10 neliön toimistohuone, joka tarjoaa rauhalliset puitteet työnteolle keskeisellä paikalla.
Sijainti on erinomainen liiketoiminnan kannalta. Palvelut ovat aivan kivenheiton päässä, sillä ruokakauppa sijaitsee vain noin 300 metrin etäisyydellä ja postipalvelut löytyvät 140 metrin päästä. Myös juna-asema on vaivattoman matkan päässä, vain 500 metrin etäisyydellä, mikä helpottaa kulkemista niin työntekijöille kuin vierailijoillekin.
Vuokrattava tila on osa laajempaa kokonaisuutta, jossa pääset hyödyntämään yhteiskäytössä olevia tauko- ja sosiaalitiloja. Vuonna 2010 laajasti peruskorjattu kiinteistö tarjoaa viihtyisän ympäristön päivittäiseen työskentelyyn. Vuokralainen voi hankkia tilaan oman tarpeitaan vastaavan internetyhteyden.
Toimistohuone on vuokrattavissa toistaiseksi voimassa olevalla sopimuksella, ja vuokraan sisältyy vesimaksu. Sopimuskauden alussa toivotaan 12 kuukauden sitoutumista, ja vakuutena toimii kolmen kuukauden vuokraa vastaava summa.
Tule tutustumaan tilaan videon välityksellä tai paikan päälle. Ota yhteyttä ja sovitaan esittely, niin katsotaan, sopisiko tämä tila juuri sinun yrityksesi uudeksi kotipesäksi.
Tarjolla useita eri kokoisia tiloja samassa kohteessa (10 m², 22 m² ja 34 m²) – kysy lisää vaihtoehdoista!
Posti / palvelupiste: Noin 140m päässä.
Huonekalukeidas Oy
Stemma
Kulta Kotipalvelut
Pohjois-Savon Muisti ry
Ravintola Butterfly
Iljan Isännöintikeskus Oy
Savon Juristit Oy
Pohjois-Savon Ely Keskus
Ykköstapahtumat Oy

Fine LKV
Minna Moisio
Toimitilavuokraus, LKV
Näytä puhelinnumero
0505417349
minna@finelkv.fi
Leväsentie 2, 70700 Kuopio
Yliopistonkatu 28, 40100 Jyväskylä
Toimin kaupallisena managerina ja toimitilavuokraajana, otathan yhteyttä jos mietit mahdollisia muutostöitä tai esillä olevista toimitiloista ei löydy sitä mitä etsit. Selvitetään muut tila mahdollisuudet. Asiakaslähtöisyys on minulle tärkeää sekä asioiden sujuvuus. Ota yhteyttä, mielelläni autan sinua.