Vuokrataan liiketilat - Turku
Humalistonkatu 18, Keskusta, 20100 Turku #10861569
Liiketilaa Turun keskustasta
Osoite
Humalistonkatu 18, 20100 Turku
Tilatyyppi
Liiketilaa
220 m2
Vuokra
2420 e
Muuta
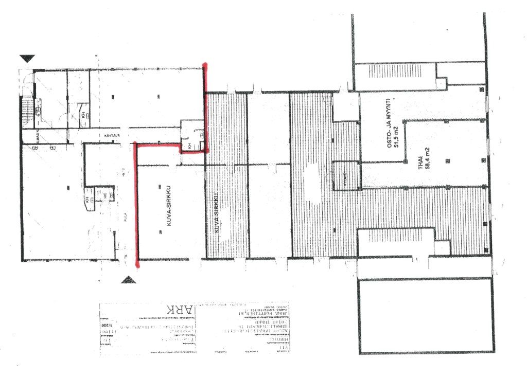
Vuokrattavana 220 m² liiketila Turun keskustassa. Tila soveltuu hyvin esimerkiksi hoitola- tai myymäläkäyttöön. Tila vapautuu kesäkuussa 2026.
Tila on aiemmin toiminut jalkahoitolana sekä osittain myymälänä. Tilakokonaisuus koostuu erikokoisista hoitohuoneista sekä avotilasta, joka mahdollistaa monipuolisen käytön.
Lisäksi tilassa on taukotila keittiöllä sekä wc-tilat. Näkyvä ja helposti saavutettava sijainti. Tila on esteetön.
Tervetuloa tutustumaan, varaathan välittäjältä oman esittelyaikasi. Voit kysyä meiltä myös muita sopivia vaihtoehtoja, kauttamme löydät juuri Teidän tarpeisiinne sopivat tilat. Palvelumme on tilanhakijalle veloitukseton!
Tila on aiemmin toiminut jalkahoitolana sekä osittain myymälänä. Tilakokonaisuus koostuu erikokoisista hoitohuoneista sekä avotilasta, joka mahdollistaa monipuolisen käytön.
Lisäksi tilassa on taukotila keittiöllä sekä wc-tilat. Näkyvä ja helposti saavutettava sijainti. Tila on esteetön.
Tervetuloa tutustumaan, varaathan välittäjältä oman esittelyaikasi. Voit kysyä meiltä myös muita sopivia vaihtoehtoja, kauttamme löydät juuri Teidän tarpeisiinne sopivat tilat. Palvelumme on tilanhakijalle veloitukseton!
Vapautuu
Kysy
Kerros
katutaso
Ota yhteyttä
Tuloskiinteistöt Oy
Kauppiaskatu 11 C 23, 20100 Turku
Näytä puhelinnumero
(02) 274 3500
Ritva Nuotio
Commercial Real Estate Advisor LKV, KED
Näytä puhelinnumero
+358 50 5261 744
Karoliina Eklund
Leasing Support Specialist
Näytä puhelinnumero
+358 40 017 8999
Pyydä lisätietoa
