Vuokrataan toimistotilat - Helsinki
Malmin Kauppatie 12, Malmi, 00700 Helsinki #10861559
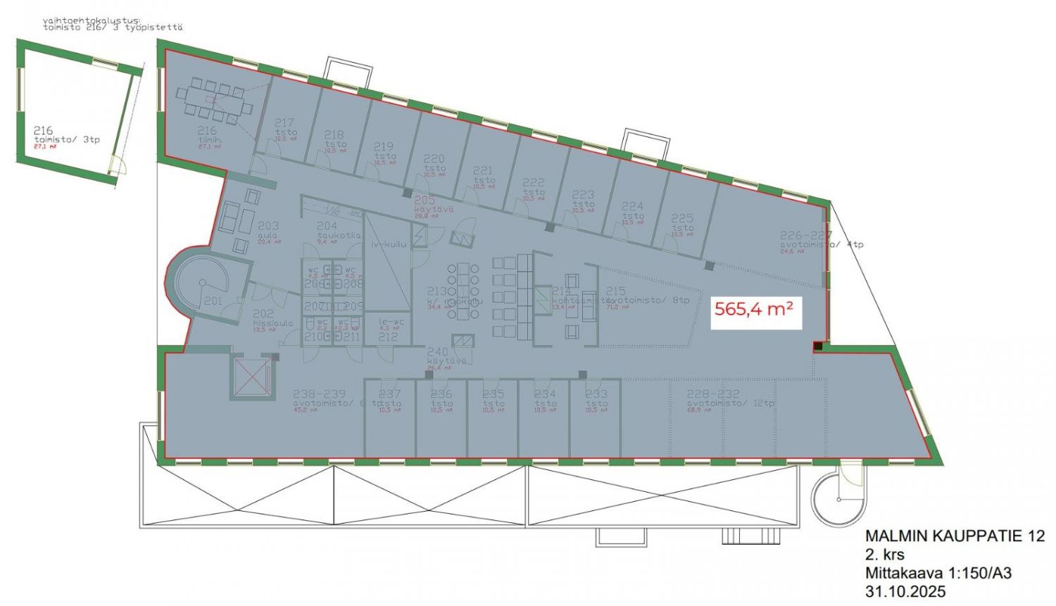
Vuokrataan siisti toisen kerroksen 565,4 m² toimistotila Malmin ytimestä. Tilassa on koneellinen ilmanvaihto, sekä jäähdytys huonekohtaisilla säätömahdollisuuksilla. Tila on myös jaettavissa.
Kohteesta löytyy vuokrattavia pysäköintipaikkoja hallista sekä ulkoa. Kohde sijaitsee lyhyen kävelymatkan päässä Malmin juna-aseman laitureista sekä alueen monipuolisista palveluista. Kehä I:lle on matkaa ainoastaan noin kilometri, joten kohde on erinomaisesti tavoitettavissa kuljitte sitten idästä tai lännestä. Lähimmälle linja- autopysäkille on matkaa n. 150 m. Pyörällä työmatkaa taittaville löytyy tietenkin suihkutilat.
Kohteesta on vuokralle tarjottavana pienempiäkin toimitiloja ja varastoja, ota yhteyttä ja sovitaan kohteelle kierros vaikka jo tänään!
Näkyvällä paikalla
Jaettavissa
Hausala Oy
Erkkilänkatu 11, 33100 Tampere
Näytä puhelinnumero
050 472 7077
Mika Savikko
Näytä puhelinnumero
050 472 7077
Matti Pöyhiä
Näytä puhelinnumero
040 722 6650
